大跨度钢筋混凝土连廊高大模板支撑体系施工技术研究与应用
龙彦文 王会斌 陈豪 郑元恩
上海宝冶集团有限公司 上海 宝山 200941
1. 工程概况
本本项目地块位于海南省海口市江东新区 JDQB-A05-03、04、05 地块,拟建办公楼地下两层,主要功能为车库和设备用房( 局部人防地下室 ),地下二层层高 4m ,地下一层层高 6.07m; 地上平面基本呈U字型,两侧区域主要功能为办公,地上7层,首层层高4.78m,其它层层高 4.1m,建筑高度 32.35m。项目规划总用地面积 11424平方米,本次拟建一栋高层办公楼,总建筑面积约42955.55 平方米,地上建筑面积24618.83 平方米,地下建筑面积为18336.72 平方米。本项目东西塔楼通过连廊连接,连廊总层数为 4 层,连廊位于三层至七层,其存在以下特点:
(1)核心难点:每层均存在高大模板施工区域。
(2)跨度大:连廊单跨跨度达 27.9 米,且每层均存在此大跨度结构。
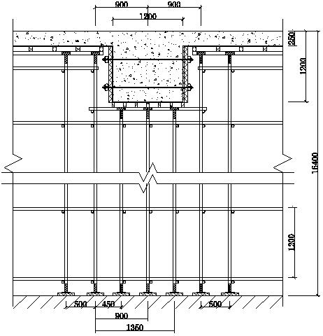
(3)高度高:连廊首层支模高度 10.45m ;三层底板至屋面板的架空层,支模高度达到惊人的16.4m。
(4)荷载大:最大梁截面尺寸为 1200mm×1200mm ,线性荷 载极大,对支撑体系承载力、刚度和稳定性要求极高。
(5)模板体系:采用扣件式钢管脚手架 + 木方(胶合板)作为主要支撑和面板体系。
2. 高大模板支撑体系专项设计
2.1 设计依据
《建筑施工扣件式钢管脚手架安全技术规范》JGJ130、《建筑施工模板安全技术规范》JGJ162、《混凝土结构工程施工规范》GB50666、《危险性较大的分部分项工程安全管理规定》37 号令及31 号文、建办质〔2021〕48 号文等)、施工图纸、地质勘察报告。
2.2 荷载分析与计算(以连廊屋面板为例)
施工荷载标准值2.5KN/ ㎡,模板及支架自重标准值0.9KN/ ㎡,新浇筑混凝土自重标准值 24KN/m3 ,钢筋自重标准值楼板 1.1KN/m3 ,梁 1.5KN/m³。
(1) 模板支架搭设高度 H: 16.4m⩾8m (2) 模板支架搭设跨度 B: 27.9m⩾18m
(3) 施工总荷载:
S=1.3×(G1k+G2k×a+G3k×a)+1.5×γL×Q1k
=12.703 kN/m2 < 15 kN/m2
(4) 集中线荷载:
S=b[1.3×(G1k+G2k×h+G3k×h)+1.5×γL×Q1k] =1.2×[1.3×(0.9+24×1.2+1.5×1.2)+1.5×0.9×2.5] =53.19kN/m⩾20kN/m
综上可知,根据住房城乡建设部办公厅关于实施《危险性较大的分部分项工程安全管理规定》有关问题的通知 建办质 (2018) 31号,此模板工程属 " 超过一定规模的危险性较大的分部分项工程范围 ",条文规定:施工单位应当组织专家对专项方案进行论证。施工单位应当根据论证报告修改完善专项方案,专项施工方案应当由施工单位技术负责人审核签字、加盖单位公章,并由总监理工程师审查签字、加盖执业印章后方可实施。
图 1 JDQB-A05-03、04、05 地块项目连廊屋面设计2.3 稳定性验算(以连廊屋面板为例)


表一 连廊屋面板支撑体系参数
(1) 长细比验算
顶部立杆段:
根据《建筑施工扣件式钢管脚手架安全技术标准》T/CECS699-2020 第 5.4.9 条 , 当 0.2m
假设 a=200mm 时, 101=kμ 1(hd+2a)=1×2.284×(600+2×200)=2 284mm (验算立杆容许长细比时,取 k=1 )
假设 a=500mm 时, 101=kμ1(hd+2a)=1×1.477×(600+2×500)=2 363mm (验算立杆容许长细比时,取 k=1 )
根据插值法,则实际 a=200mm 时, 101=2284mm
非顶部立杆段: 10=kμ2h=1×2.062×1200=2474mm (验算立杆容许长细比时,取 k=1 )
λ=max[l01, 10]/i=2474/15.9=155.597⩽[λ]=210
满足要求!
(2)立杆稳定性验算
考虑风荷载:
验算立杆稳定性时,取 k=1.217 ,同长细比验算章节的计算方法,得计算长度为
顶部立杆段: 101=2780mm
非顶部立杆段: 10=3011mm
λ=max|l01 , 10]/i=3011/15.9=189.371
查表得, Φ1=0.201
Mwd=γ0×ϕw×γQMwk=γ0×Φw×γQ(wklah2/10)=1.1×0.6 ×1.5×(0.083×1×1.22/10)=0.012kN·m
N
3 2kN
Δtd=Nd/(ϕ1A)+Mwd/W=12.732×103/(0.201×424)+0.012×106 / 44 90=152.029N/mm2⩽[f]=205N/mm2
满足要求!
2.4 支撑体系选型与参数设计(以连廊屋面板 16.4m 高度为例)
立杆:大梁底下增加立杆根数 3 根,梁跨度方向立杆间距500mm ,板下立杆间距
。

水平杆步距:严格控制,不宜大于 1.5m ,在 16.4m 高区域下部加密(如首步 1.2m )。顶部自由端高度严格 ⩽500mm 。
扫地杆:距地面 ⩽200mm 处设置纵横向扫地杆。
剪刀撑:
竖向剪刀撑:满堂架四周及中间每隔 ⩽6 跨设置一道连续竖向剪刀撑。剪刀撑由底至顶连续设置,角度 45∘ -60∘ 。
水平剪刀撑:在架体底部、顶部及中间(如每隔≤ 6m 高度)设置连续水平剪刀撑。 16.4m 高区域至少设置3 道水平剪刀撑(底、中、顶)。
连墙件 / 抱柱:充分利用连廊两侧或内部的混凝土柱,采用钢管抱柱进行刚性拉结,水平间距 ⩽3 跨,竖向间距 ⩽2 步。确保架体有可靠的侧向约束。
顶托:顶部使用可调U 型顶托,伸出长度 ⩽300mm 。
木方布置:根据面板厚度和荷载确定木方间距。
3. 高大模板支撑体系施工关键技术
3.1 施工准备
材料进场验收:钢管(壁厚、外径、锈蚀)、扣件(重量、灵活性、无裂纹)、顶托、木方、胶合板、安全网等严格按规范和方案要求验收,不合格材料严禁使用。
测量放线:精确定位立杆、梁、柱位置,弹设控制线。
基础处理:按设计要求完成地基处理或地下室顶板加固验收
技术交底:对管理人员和操作工人进行详细的安全技术交底,强调关键控制点和安全要求。
3.2 支撑架体搭设
工艺流程:定位放线 $$ 铺设垫 + 板 $$ 摆放扫地杆 $$ 竖立杆(先里后外) $$ 安装第一步纵横水平杆 $$ 安装第二步纵横水平杆$$ 安装剪刀撑 $$ 随搭设高度安装抱柱→ 重复以上步骤 $$ 安装顶部水平杆、剪刀撑 $$ 安装顶托 $$ 调整顶托标高 $$ 铺设主次龙骨(木方) $$ 铺设模板 $$ 检查验收。
3.3 关键控制点
(1)立杆垂直度:使用经纬仪控制,偏差 ⩽H/500 且≤ 50mm。
(2)水平杆水平度:拉线控制,偏差≤ 1/250 且 ⩽50mm
(3) 扣 件 拧 紧 力 矩: 使 用 扭 力 扳 手 检 查, 确 保 达 到40~65N·m。
(4)剪刀撑同步搭设:随架体搭设高度同步安装竖向和水平剪刀撑,确保其连续性、角度和搭接长度。
(5)抱柱及时可靠:随架体升高及时、牢固地设置抱柱,尤其是 16.4m 高区域和跨度方向两端,确保架体整体稳定,抵抗水平力(风荷载、浇筑冲击)。
(6)顶部自由端高度:严格控制 ⩽500mm 。
(7)顶托调节:顶托插入立杆长度 ⩾150mm ,伸出长度≤ 300mm。
(8)木方铺设:确保平整、稳固,接头错开。
3.4 模板安装
梁、板模板按设计拼装,接缝严密,防止漏浆。
大梁侧模加固:除木方背楞外,采用对拉螺杆(间距、直径经计算确定)配合钢管、山型卡加固,确保侧模刚度和抗爆模能力。
起拱:对于 27.9m 大跨度梁板,按设计要求起拱 50mm 。
3.5 架体验收
严格按照相关法律法规及规范要求组织验收。
重点检查:立杆间距、步距、垂直度、水平度、剪刀撑设置、抱柱、扣件拧紧力矩、顶托、基础、模板拼缝与加固等。验收合格并履行签字手续后方可进入下道工序(钢筋绑扎)。
4. 混凝土浇筑过程控制与监测
4.1 混凝土浇筑方案
浇筑顺序:遵循“对称、均衡、分层、连续”原则。混凝土浇 筑遵循“先梁后板,梁分层浇筑”原则,从中间向两端对称浇筑, 避免偏载,同时应严格分层浇筑,每层厚度≤ 500mm,待下层混凝土初凝前完成上一层浇筑。
浇筑速度控制:严格控制混凝土供应速度和浇筑速度,避免对支撑体系造成过大冲击荷载。大梁区域尤其要缓慢、均匀下料。
振捣:避免过振和漏振,严禁振动棒触碰支撑架体和模板支撑点。
4.2 施工过程监测
监测目的:实时掌握支撑体系在荷载作用下的变形和受力状态,发现异常及时预警处理。
监测内容:
模板沉降监测:在关键部位(如大梁跨中、支座附近、立杆顶部、支撑基础附近)设置沉降观测点。使用精密水准仪或电子位移计监测。
架体水平位移监测:在架体顶部和中部设置水平位移观测点(如贴反光片),使用全站仪监测。
立杆轴力监测(可选):在关键立杆上安装轴力计,监测实际受力情况。
监测频率:浇筑前初始值 $$ 浇筑过程中(每30-60 分钟一次)$$ 浇筑完成后(前 8 小时每 2 小时一次,之后适当延长) $$ 混凝土终凝后至达到设计强度前(每天 1-2 次)。出现异常情况(如沉降速率突然增大、位移超标、异响)时加密监测。
预警值与控制值:根据计算和规范设定沉降、位移的预警值和控制值。达到预警值立即报告,分析原因;达到控制值立即停止浇筑,疏散人员,采取应急措施。
专人负责:配备专职监测人员,实时记录分析数据。
5. 实施效果与经验总结
5.1 实施效果
安全:整个高大模板支撑体系施工及混凝土浇筑过程中,支撑体系稳定可靠,未发生任何失稳、坍塌或重大安全事故。监测数据均在预警值内。
质量:连廊混凝土结构成型质量良好,标高、尺寸、平整度符合规范要求,无严重裂缝、漏浆、下沉等质量缺陷。实体检测合格。效率:通过精细组织和过程控制,按计划工期完成了连廊主体结构施工。
5.2 经验总结
设计是根本:科学严谨的设计计算(特别是稳定性验算和节点设计)是安全的前提。专家论证不可或缺。
构造是关键:剪刀撑、抱柱的设置数量、位置、质量是保证整体稳定性的核心构造措施,必须严格按方案执行。扣件拧紧力矩是节点刚度的保证。
基础是保障:基础(特别是 16.4m 高区域和大梁下)的承载力必须满足要求,并做好排水。
过程控制是核心:精细的搭设操作(垂直度、水平度)、严格的材料验收、认真的架体验收是质量基础。
监测预警是眼睛:实时监测是发现隐患、及时处置的重要手段。
安全管理是红线:必须贯穿始终,落实责任制,加强巡查,杜绝违章。
扣件式脚手架的适用性:本工程证明,在严格设计、精细施工、强化构造、全程监控的前提下,扣件式钢管脚手架体系能够安全应用于跨度 27.9m、支模高度 16.4m、荷载巨大的钢筋混凝土连廊高大模板工程,具有较好的经济性和适应性。
第一作者:龙彦文 1989 年08 月 男 江西省吉安市 汉族 大学本科 工程师 土木工程
第二作者:王会斌(1998.11.09),男,河南省安阳市人,汉族,大学本科学历,上海宝冶集团有限公司,土木工程方向
第三作者:陈豪(1998.03.28),男,湖北省大冶市人,汉族,大专学历,上海宝冶集团有限公司,工程造价方向
第四作者:郑元恩(1994.05.06),男,海南儋州人,汉族,大学本科学历,上海宝冶集团有限公司,土木工程方向