自动筛土机的结构设计与应用
王威 黄莺 敖伯雄 黄庆鋆 彭芸丰 张玉云
西藏农牧学院 清洁能源与电气工程学院 西藏林芝 860000; 西藏农牧学院 水利与土木工程学院 西藏林芝 860000
中图分类号:TU415 文献标识码:A
Abstract :With the rapid development of geotechnical engineering science and technology, the demand for soil treatment equipment is increasing, especially the performance requirements for the key equipment of soil screening machines are constantly improving. As an indispensable and important equipment in the soil treatment process, the scientific and rational design of the soil screening machine will directly determine the efficiency of the soil screening operation and the quality of the final treated soil. This article will provide a detailed introduction to the structural design principles of automatic soil screening machines and compare them with traditional vibrating soil screening machines. The purpose is to further improve efficiency, promote the development of soil treatment technology towards automation and intelligence, and adapt to the rapid development of modern science and technology.
Keywords ∵ Soil screening machine; Structural design; Experimental comparison; efficiency
1 引言
在国家推动工程建设的大背景下,保障工程安全和提高效率至关重要。现代工程规模和技术的提升,带来了土方工程中筛分效率低、土料分布不均和堵塞等问题,这些问题将威胁工程安全和经济效益。传统筛土机械依赖机械振动或滚动运动筛分土料,但无法模拟手工筛土时的手臂自然摆动和精准筛动,导致处理特定土料时效果不佳,影响工程效率和安全。传统筛土机存在着一些共同的问题,筛分速度较慢,筛选精度不够高。为了提高土筛的筛选速度,通常会采取设置多个驱动轴增加传送带速度的方法来加快筛选速度。为了提高筛选精度,工程中引入了多层筛网设计以达到在科研试验和高标准建筑工程中对土颗粒度的精确分离需求。[1]
本文以筛分速度慢和筛选精度低为研究对象,应用系统思维,通过对不同作业过程分析和对土筛网、驱动轴进行一体化设计,提出了人体支臂筛土法来实现功能多样化,解决了工程造价高、设备功能单一的问题,对降低工程投资、减少工程运行安全隐患有较好的参考意义。
2 筛土机设计理论、结构及技术方案介绍
2.1 设计理论过程介绍
1)仿生学设计原理。通过摆臂传动轴和筛分传动轴模拟人体手臂的自然摆动实现筛分过程的柔性筛动,提高了筛分的效率、均匀性和精确度,减少人工劳动强度。
2)多轴协同传动系统。平衡传动轴、摆臂传动轴、筛分传动轴三轴平行设计以形成稳定的力学结构。
2.2 结构介绍
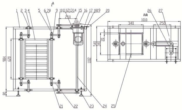
这款筛土机设备主要由一个主框架构成,该框架具备底板和顶板,以及一个筛土装置。此外,它还配备了多轴式摆动传动装置,该装置包括驱动动力源以及由其驱动的平衡传动轴、摆臂传动轴和筛分传动轴。
在这款筛土机的设计中,平衡传动轴的两端分别被固定连接在主框架的底板和顶板上,其顶部的外侧还特别设计了皮带轮。这些皮带轮通过传动带与驱动动力源以及摆臂传动轴相连,从而实现动力的传递。摆臂传动轴则通过摆臂与筛分传动轴相连,确保筛土装置能够有效地进行筛分工作。
为了进一步优化筛土机的性能,在对应筛分传动轴的位置特别设置了上、下两个传动套。筛分传动轴的两端分别与这两个传动套相连,这样的设计不仅增强了传动的稳定性,也提高了筛土机的工作效率和可靠性。具体结构图如图1 所示。

1 -电机架焊接组合;2 -短轴;3 -圆锥滚子轴承;4 -筛架焊接组合;5 -半长轴;6 -平垫圈 16 ;7 -六角螺母 M16 ;8 -六角薄螺母 M16 ;9 -锁紧螺母 M25 ;10 -皮带轮从动轴;11 -平垫圈 12 ;12 -弹簧垫圈 12:13 -内六角圆柱头螺钉 M12*45 ;14 -六角螺母 M12 ; 15-0 型三角皮带 O686Li ; 16-0 型三角皮带轮;17—750W 减速电机;18 -弹簧垫圈 8 ;19 -六角螺母 M8:20 -皮带轮张紧螺栓;21 -平键 6*6*14 ;22 -转臂;23 -脚杯 D50*M10*l00 ;24 -长轴;25 -无头销轴(带孔销) Φ5*50 ; 26-0 型三角皮带 O686Li ;27 -双槽 O 型三角皮带轮。
2.3 技术方案介绍在本技术方案中:
1)驱动动力连接于顶板的底部,确保整个自动土壤筛的重心位于主体框架内侧,避免偏心现象,从而提升结构的紧凑性。
2)驱动动力通过柱状支撑套固定连接于顶板,确保驱动动力稳定地固定在顶板上,减少筛土过程中驱动动力的运动,延长其使用周期及寿命。
3)驱动动力源为变频电机,便于快速调速及调整摆动方向,能够在确保自动土壤筛正常运行的情况下,根据不同的土壤类型和筛分要求,调节筛土装置的转速。可调速功能使筛土机适应不同的工作环境和筛分需求,以便可以快速调速以及调整摆动的方向,进而确保筛土的效率更高,进一步提高了筛分效率和精确度,同时减少了设备的能耗和磨损,延长了使用寿命。
4)筛分框主体采用六层结构设计,每一层筛分隔层均设计有标准尺寸的孔径筛网,适应不同粒径的土壤筛分需求,具体筛网孔径见表1,每层筛网均可根据试验要求进行更换,筛框设计遵循国家标准,确保筛分结果的准确性和一致性,同时筛土框架的多层结构设计使其能够同时进行多级筛分,极大地提高了筛分效率。

5)主框架底部设有若干防震支撑脚,在土壤筛分的时候起到较好的筛体防振动效果。
2.4 技术比对
与现有的技术相比,本文所设计的筛土装置具有显著的优点[17‑20],具体包括:
1)本文所设计的筛土装置通过动力驱动的多轴式摆动传动装置的摆臂,能够有效地带动筛分框主体及其连接的筛分结构,使得土壤在筛分过程中能够实现均匀的往复摆动,从而达到高效的筛分效果。
2)该装置利用摆臂传动轴带动摆臂及筛分传动轴,实现刚性连接的往复摆动,这种设计不仅提高了筛分效率,而且由于刚性连接的特性,使得装置具有良好的耐磨性能和可靠性,从而延长了设备的使用寿命。
3)通过采用多重传动轴、皮带轮和传送带传递摆动运动,本文所设计的筛土装置能够有效地提高筛分的稳定性和传输平衡性能,确保筛分过程的连续性和均匀性,进而提升筛分质量。
4)在主框架的顶板和底板之间设置平衡传动轴,这一创新设计进一步提升了摆动稳定性,使得筛土装置在运行过程中更加平稳,减少了因振动引起的能量损失,提高了整体的工作效率。[2‑3]
3 原理介绍
在自动筛土机的工作流程中,电机的运转是整个过程的驱动力。当电机启动后,其旋转的动力通过传动系统中的皮带轮传递给平衡传动轴,使得平衡传动轴开始顺时针方向的自转。与此同时,平衡传动轴的自转又通过另一组皮带轮将动力传递给连接在其上的摆臂传动轴。摆臂传动轴在接收到动力后,也开始转动,而固定在摆臂传动轴端部的摆臂随之摆动。摆臂的摆动带动了筛分传动轴的摆动,最终使得筛土装置在摆动中进行筛土工作。整个过程的连贯进行,依赖于电机的稳定运转和传动系统的精确配合。
在自动筛土机的具体实施过程中,筛分传动轴与摆臂之间的连接采用了螺母和键的固定方式。这种连接方式确保了筛分传动轴能够牢固地固定在摆臂之上,使得筛分传动轴能够跟随摆臂一起,围绕摆臂传动轴的中心轴线进行顺时针方向的运动。这种运动模式是筛土装置能够有效工作的关键。通过这种连接方式,筛分传动轴和摆臂之间形成了一个稳定的动力传递系统,保证了筛土装置在工作过程中的稳定性和可靠性。
筛土装置本身通过轴承与筛分传动轴相连。当筛分传动轴在摆臂传动轴的驱动下转动时,筛土装置也随之转动。由于筛土装置与筛分传动轴的连接方式,筛土装置在转动过程中会围绕着两个轴之间的中点进行顺时针方向的公转运动。这种公转运动使得筛土装置能够有效地对土壤进行筛分,从而达到预期的筛分效果。
4 筛土机试验方案及数据对比
4.1 试验方案
采用筛分法分析颗粒的粒径分布。利用不同孔径的标准筛对试验样本进行筛分,从而得到各粒径范围内的颗粒质量分布。并绘制粒径分布曲线,对振筛机和自动筛土机的精确度进行分析对比。前期进行的大量试验证明了 2mm 以上的土壤颗粒具备自然分选性,本试验暂不对此进行讨论。本试验主要关注 2mm 以下土壤在振筛机和自动筛土机筛选下的区别。
用四分法选取代表试样,试样选取见表2。

本试验试样采用手筛制备。筛网按其孔径由大到小的顺序码放。取一密闭容器承接过筛土颗粒,按顺序依次取用单一筛网,将混合的天然风干土样倒入筛网中,开始手动筛选直至筛网无颗粒下落为止。在将密闭容器中的试样倒入下一级筛网,同样手动筛选直至筛网无颗粒下落为止。后续试样制备重复上述动作即可。
按照各粒组所需试样的质量,利用电子天平称取对应质量的试样两份,称量应准确至0.1g,将称取试样充分混合。
取标准筛由大孔隙开始依此码好,将制备好的试样倒入标准筛中进行筛析。振筛机和改良筛分机分别进行,筛分时间均为 15min ,机械完成工作后在白纸上轻叩摇晃观察是否有颗粒漏下,当仍然有颗粒下漏时继续摇晃直至无土颗粒下漏为止,将白纸上的颗粒倒入下一级筛中,筛前总质量于筛后总质量各级总和质量的差值不得大于总质量的 1%⨀ 。[4‑9]
4.2 筛分数据比对
按试验方案步骤完成试验,振筛机和自动筛土机工作 15min 后各粒组的土颗粒质量见表3 及表 4 。



图2 三种工况下土壤粒度分布曲线
对比以上试验结果,从误差上来看,原始试样称取质量为 3800g ,振筛机工作 15min 后剩余质量为 3786.5g,原始试样质量和试验后样本质量误差为 0.36% 。自动筛土机工作15min 后剩余质量为 3795.9g ,原始试样质量和试验后样本质量误差为 0.11% 。从误差精度上看,自动筛土机将筛土精度提升了 3 倍有余。从粒径分布曲线来看,自动筛土机筛分后的土颗粒的粒径分布曲线和初始试样土颗粒的粒径分布曲线拟合承担更高,也证明改良后的自动筛土机精度优于振筛机。[10‑12]
同时通过实验,也注意到振筛机筛选后的试样各粒径组和初始试样各粒径组对比,在0.25~2mm 粒径组的土粒质量大幅减小,而至 0.25mm 以下粒径组的土粒质量大幅增大。可以合理推测,振筛机的振动对于某些临界粒径的土颗粒是有影响的,在振动的作用下可能迫使该部分土颗粒掉入下一级粒径组中,同时振动作用使得扬尘量增大,误差由此难以控制。而自动土筛机筛选后的试样各粒径组和初始试样各粒径组对比,质量均比较接近,因其采用模拟人手平筛状态,消除振动影响,精度也有所提升。[13‑16]
5 存在的问题及解决办法
尽管新型筛土机在设计上取得了显著的进展,但在实际应用中仍然存在一些问题。例如,筛土机在处理含有大量粘土或湿土时,筛网容易堵塞,影响筛分效率和筛分质量。此外,筛土机在长时间连续工作后,筛分传动轴和摆臂传动轴的磨损问题也逐渐显现,需要定期更换部件,增加了维护成本和停机时间。
为了解决这些问题,我们提出以下改进措施:
首先,针对筛网堵塞问题,我们计划在筛土机的筛网前增加一个预筛分装置,该装置可以预先分离出较大颗粒和粘土团块,减少对筛网的直接冲击。同时,我们还考虑在筛网表面涂覆一层特殊的防粘涂层,以降低湿土对筛网的粘附性,从而减少堵塞现象。
其次,针对传动轴磨损问题,我们计划采用更耐磨的材料来制造传动轴,并在关键部位增加润滑系统,以减少磨损和延长使用寿命。此外,我们还考虑引入智能监测系统,实时监控传动轴的磨损情况,一旦发现磨损超过安全阈值,系统将自动提醒维护人员进行检查和更换,从而减少意外停机时间。
6 总结
综上所述,本文介绍的自动筛土机在结构设计和技术方案上均体现了创新性。通过多轴式摆动传动装置的引入,筛土机不仅提高了筛分效率,还确保了筛分过程的均匀性和稳定性。筛土机的多层筛分框设计满足了不同粒径土壤的筛分需求,同时保证了筛分结果的准确性和一致性。
在技术比对中,新型筛土机与传统振动筛土机相比,展现了其在处理粗颗粒土(0.25\~0.5mm 粒径)和提高筛选精度方面的优势。试验数据表明,新型筛土机在粒径分布均匀性、筛选精度以及筛分效率方面均优于传统振动筛土机,这为筛土机械的进一步优化和应用提供了有力的数据支持。
尽管新型筛土机在设计和性能上取得了显著的进展,但在实际应用中仍需面对一些挑战,如筛网堵塞和传动轴磨损等问题。针对这些问题,我们提出了增加预筛分装置、涂覆防粘涂层、采用耐磨材料和引入智能监测系统等改进措施,以期进一步提升筛土机的性能和可靠性。
未来,我们计划继续对筛土机进行深入研究和改进,以适应更多种类的土壤筛选需求,并探索更多提高筛土机性能和降低维护成本的方法。我们相信,随着技术的不断进步和创新,筛土机将为农业、建筑和环保等行业带来更大的便利和效益。
参考文献:
[1] 陈佛生 , 彭昭辉 . 水利水电工程单轨拦污清污系统及多功能清污机设计与应用 [J].机电工程技术 ,2024,53(10):143-147+151.
[2] 张江江 , 陈旭 , 黄超 , 等 . 围压卸载条件下砂岩损伤及渗透演化颗粒流模拟 [J/OL].工程地质学报 ,1-16[2024-11-24].https://doi.org/10.13544/j.cnki.jeg.2024-0332.
[3] 沈国浪 , 徐祖权 , 董枫 , 等 . 超声振动在旋振筛筛分中堵孔的研究 [J]. 陶瓷学报 ,2024,45(02):409-415.
[4]GB/T 50123-2019, 土工试验方法标准 [S].
[5 陈亮 , 卢周洲 , 滕耀宗 . 玄武岩纤维遏制作用下的砾类土管涌试验研究 [J]. 防灾减灾工程学报 ,2024,44(03):689-696.
[6]陈亮,谢佳敏.颗粒形貌对循环水头作用下砂土潜蚀的影响[J/OL].河海大学学报(自然科学版 ),1-12[2024-11-24].http://kns.cnki.net/kcms/detail/32.1117.TV.20240918.1837.002.html.
[7] 杨华瑞 , 马学东 , 赵轩瑾 , 等 . 复合振动筛筛分煤颗粒的离散元模拟研究 [J]. 煤炭工程 ,2024,56(04):192-198.
[8] 王鹏 , 王宇 , 孟强强 , 等 . 双层直线振动筛的筛分性能模拟研究 [J]. 辽宁科技大学学报 ,2024,47(02):146-153.
[9] 王晓月 . 复杂颗粒形状下筛分松散与透筛机理研究 [J]. 漳州职业技术学院学报 ,2023,25(02):74-79+102.
[10] 关文 , 王一泽 , 郭超 . 基于 EDEM 圆振动筛筛分过程数值模拟研究 [J]. 重型机械 ,2022,(05):64-68.
[11] 谢志勇 , 朱娟芬 . 离散元法大豆联合收获机振动筛筛分过程仿真 [J]. 农业装备技术 ,2021,47(05):45-47+50.
[12] 陈兵 , 燕纪威 , 尹忠俊 , 等 . 基于 DEM 的高频振网筛多参数优化 [J]. 工程科学学报 ,2021,43(06):852-861.
[13] 夏绪辉 , 荆为民 , 张泽琳 , 等 . 振动筛仿真研究、应用现状及发展趋势 [J]. 中南大学学报 ( 自然科学版 ),2020,51(10):2689-2706.
[14] 李 亚 杰 , 闫 宏 伟 , 袁 飞 , 等 . 倾 斜 式 直 线 筛 筛 分 机 理 分 析 [J]. 煤 矿 机械 ,2020,41(02):78-81.
[15] 陈亚哲, 姚红良, 刘刚. 振动参数对筛分效率影响的实验研究[J]. 东北大学学报( 自然科学版 ),2019,40(08):1122-1126.
[16] 王立军 , 崔友强 , 郑招辉 , 等 . 振动筛不同运动形式对颗粒群筛分的影响 [J]. 农业机械学报 ,2019,50(06):119-129.
[17] 刘威. 叠层振动筛在水峪选煤厂的应用实践[J]. 煤炭加工与综合利用,2024,(12):67-69+72.
[18] 闫立峰 , 杨方成 , 周靖 , 等 . 振动筛状态监测系统在李村选煤厂的应用 [J]. 煤炭加工与综合利用 ,2024,(11):33-37+41.
[19] 任世业 , 杜建斌 . 基于 ANSYS 的振动筛横梁结构的选型及优化研究 [J]. 矿山机械 ,2024,52(09):46-50.
[20] 李 晋 三 . 直 线 振 动 筛 出 料 箱 技 术 改 造 在 选 煤 厂 的 应 用 [J]. 洁 净 煤 技术 ,2024,30(S2):676-680.
基金号:202410693012第一
作者简介:王威(2002—),男,本科在读,能源与动力工程专业,E-mail :2469731646@qq.com通讯
作者简介:﹡张玉云(1973—),女,副教授。E-mail :357844658@qq.com