上海超低能耗住宅电气实施措施分析
张鑫田
中国建筑上海设计研究院有限公司 上海 200000
引言
所谓超低能耗建筑,是指在设计、建造及使用的全生命周期中,综合运用一系列先进技术手段。通过充分挖掘自然资源的利用潜力,最大限度实现节能目标,不仅能显著降低能源消耗与环境污染,还能有效提升建筑物的能源利用效率,增强其可持续性,为应对能源与环境挑战提供创新解决方案 。
1 项目概况
本项目地处市宝山区。项目用地性质为三类住宅组团用地,规划用地面积 43500.40 ㎡;地上计容建筑面积为 95700.88 ㎡,住宅建筑面积共 93820.16 ㎡,配套用 房面积 1880.72 ㎡;地下建筑面积为 40119.84㎡。总建筑面积为 140260.10 ㎡。容积率不大于 2.2,绿地率 35.01‰ 。整个小区由 15 栋 16-18 层高层住宅,物业、社区、PT 站、垃圾 房等配套用房以及地下车库组成。根据《关于加强超低能耗建筑项目管理的相关规定》沪建建材〔2022〕613 号第一条要求,根据沪建建材(2022)613 号文《关于加强超低能耗建筑项目管理的相关规定》,低于 2000 平方米的建筑不在申报范围内。根据《关于加强超低能耗建筑项目管 理的相关规定》沪建建材〔2022〕613 号第五条要求,本次符合超低能耗建筑申报范围的建筑为地块内的 1#~15#楼,因此项目内住宅均应按照超低能耗技术路线进行设计与建造。
2 室内照明
(1)吸顶灯照明
在卧室、客厅、卫生间、厨房设计吸顶灯,是典型的有主灯设计,主灯充当主要照明,主灯布置在室内的中心位置,且仅有一盏,有利于室内照明照度的均匀性。在做超低能耗项目时,这种有主灯的布置的优点是灯具容易选型,容易在既满足超低能耗的前提下,又方便甲方集采选择灯具。
(2)筒灯、射灯照明
筒灯、射灯照明方式的设计,是典型的无主灯设计,住宅的各个功能房间内部,筒灯、射灯逻辑不一致,灯具数量不统一;这样设计从装饰角度,能变动的营造出室内照明气氛。但对于超低能耗建筑,灯具选型,统一是比较难的。
(3)灯带照明
2.1 室内照明的几种方式

住宅灯带照明多数是将光源向上,使灯光经顶棚反射下来使天棚产生漂浮的效果形成朦胧感营造的气氛更为迷人。所以灯带照明是不能作为主要照明的,是装饰性的照明,尽管在规范中要求装饰性照明灯具的 50% 计入LPD 中,但是因为装饰为了在室内空间营造出温馨、温暖的氛围,灯带的选型基本在 10~12W/m⨀ 。经计算和核算,只要室内吊顶四周设置了环灯带,那么在进行超低能耗设计时,LPD 是肯定不满足要求的。
2.2 灯具选择
本项目室内照明的LPD 值根据《市超低能耗建筑技术导则(试行)》中的要求:住宅各主要房间照明功率密度达到《建筑照明设计标准》GB50034-2013 中目标值的 70% 以下,照明功率密度设计值 <3.5W/m2
功能场所照明灯具布置计算公式如下[1]
E=NΦ UK/A
式中:N— 光源数量;
E— 工作面上的平均照度;
A— 工作面面积;
Φ — 光通量;
U— 利用系数;
K— 灯具维护系数。
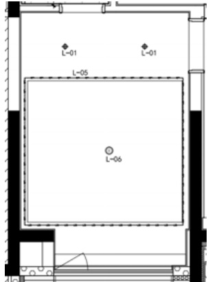
本项目共有 3 种标准户型:99 平方米、120 平方米、144 平方米;因为是全精装交付,为了保证销售时室内的灯光效果,装饰专业前期已经将每个户型的房间内的灯具方案布置完毕,电气专业负责为了满足超低能耗要求,需要提供灯具的合理化的选型建议,本项目住宅室内照明方案采用的是筒灯、灯带的组合式方案。以99 平方米户型中的主卧为例。
图 1

由图可知,主卧中布置了三个灯具,其中衣柜前设置了 2 个筒灯,床上方设置了一个吸顶灯。主卧建筑面积11.5 平方米,根据超低能耗导则的技术要求,主卧的最大功率密度3.5W 每平方米,反推此房间内最大的灯具安装功率为 40w 。但是装饰专业为了保证后期的泛光效果,灯带的功率至少要10W/m.灯带长度约为11m,作为装饰性灯具即使按照 50% 的功率计算,也无法满足超低能耗的要求。因此,在进行超低能耗验收时,灯带是不可以装设的。为了既满足房间的照度要求,又满足超低能耗的要求,同时又要降低灯具的造价,最后统一要选择 LED 光源、光效 80 的灯具,衣柜处筒灯5W,中心筒灯12w,总功率22W.照度基本在80 左右。其他户型根据均根据这个原则进行选择。
3 可再生能源利用
3.1 政策支持
根据 2023 年市相关政策规定,新建住宅项目中光伏安装要求如下:屋顶安装太阳能光伏的面积比例不得低于 30‰ 。可再生能源替代率不能低于 5% ,所以光伏最低安装比例不能低于屋顶面积的 35% ,要求同步开发建设,确保与建筑工程同步规划、同步设计、同步施工、同步验收使用。以上的设计要求及比例,为满足超低能耗的太阳能光伏发电比例奠定了基础。对于住宅建筑,尤其是高层住宅建筑,由于屋面有正压风机房、电梯的冲顶、生活水箱等建筑构造已经占用了屋面大部分面积,其次还有单元间的疏散通道,规范禁止在疏散通道上有任何的阻碍物出现; 35% 的光伏布置比例为每个设计师带来了挑战。
3.2 系统及并网形式
依据国家电网市颁布的《新建居住建筑光伏接入导则》,每栋住宅允许一个并网点,只有光伏发电容量超过 100kw 时才考虑增加一个并网点。所以本项目虽然每栋楼有 2~3 个单元组成,但是总的光伏发电容量均没有超过50kw,均按照一个并网点考虑。光伏组件的主要参数如下表所示:

逆变器具有过载、短路、电网停电、电网过欠压、电网过欠频、防孤岛保护、极性反接保护、对地绝缘监测、直流过压、过流保护、模块温度保护等功能。光伏组件经逆变器、交流汇流箱(柜)、用户并网箱、光伏专用并网箱、光伏专用电缆分支箱接入公共电网。公共电网供电电缆经光伏专用电缆分支箱供建筑内总熔丝箱或PML 柜。
并网点为交流动力电缆经用户并网箱内并网开关出线与光伏专用并网 箱内智能断路器的连接处;公共连接点为光伏专用电缆分支箱的公共母线。
图.2

3.3 光伏组件布置
在进行光伏设计及布置时,不仅需要考虑光伏的发电效率、同时也要考虑光伏布置给建筑带来的相关影响,要兼顾安全与美观,方便后期居民能够欣然接受,避免发生竣工验收后居民投诉事件的发生。规范《建筑太阳能光伏发电应用技术标准》中的要求:1)光伏方阵设计与安装宜和建筑条件、建筑环境和建筑美观相协调,光伏方阵布置位置应选择光照条件比较好的建筑部位;2)光伏方阵安装宜采用固定支架,光伏方阵的安装倾角宜经技术经济比较后确定;3)光伏方阵布置应不影响所在部位的建筑防水、排水和保温隔热等要求;4)建筑物上安装的光伏发电系统,不应降低相邻建筑物的日照标准。5)光伏方阵设计与安装宜和建筑条件、建筑环境和建筑美观相协调,光伏方阵布置位置应选择光照条件比较好的建筑部位;《民用建筑设计通则》GB50352 中还规定:1)光伏组件不能跨越建筑变形缝;2)光伏组件应避开厨房排油烟烟口、屋面排风、排烟道、通气管、空调系统构建布置。
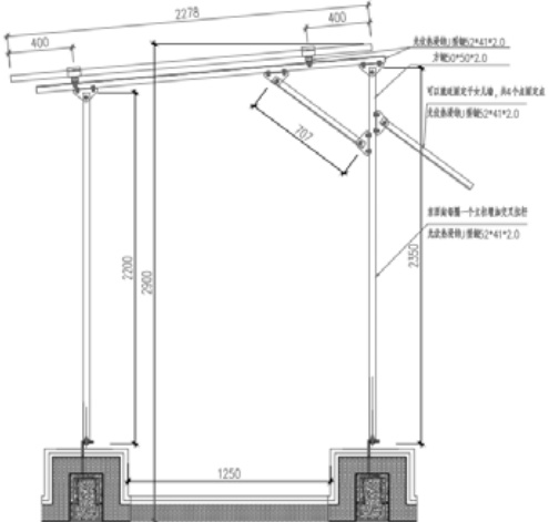
以其中某一栋楼为例,屋顶建筑标高 51.15m ,女儿墙标高 51.6m ,女儿墙上栏杆高度 52.6m ,金属构造顶标高 54m .光伏板布置平面布置原则:避开强电井、避开检修楼梯、屋顶单元之间的疏散楼梯。但是屋面可利用面积必定有限,如果两个单元之间的疏散通道不利用,光伏布置比例满足不了要求。所以屋面采用了两种光伏支架的高度。
靠近女儿墙一侧:安装方式采用 5 度倾角,最高处屋顶建筑完成面1.15m.所以安装完成之后, 1.15m 的安装高度,可以满足屋顶水管的敷设,也不影响排油烟井道;光伏组件高度的标高应该在 52.3m ,高于女儿墙,避免了女儿墙的遮挡,增加了光伏效率;同时总高度没有超过女儿墙上方的金属栏杆,有 300 高差;防止因为增加的光伏组件影响建筑外立面,经在模拟视图软件中的模拟效果,从下方各个角度,对于后期居住的业主而言,均看不到光伏组件,避免了投诉事件的发生。
图.3

要有效利用疏散通道,即充分利用其面积,又保证不影响建筑疏散要求。经与建筑沟通建筑疏散通道要求宽度不能低于 1.2m ,高度应满足不低于 2.2m ,方便人员疏散。所以此处的光伏布置,采用架高的方案,同样采用5 度倾角,光伏基础延疏散通道方向布置,间距1.8m,一侧支架高度2200,另一侧支架高度 2350,从而保证光伏板下方净高高度满足 2200 的要求,光伏板最高处2900 左右,虽然总高度超过了金属栏杆的高度,但是并未超过金属构造顶的标高,同时这部分光伏板处于屋顶中间位置,经模拟软件模拟,处于地面的人,无法观察到光伏板的布置,同时避免了被人投诉的风险。
图.4

4 其他控制措施
对于超低能耗住宅,验收时必须要满足公灯、电梯等负荷能耗的分项计量,需要注意的是对于很多初步接触的设计人员,首先想到的是要做能耗管理系统,笔者经与超低能耗顾问及验收人员沟通,超低能耗验不对是否有这个系统做强制要求,仅对以上负荷是否有独立电表有强制要求。的住宅低压电气系统中,PML 柜出线系统,已满足此要求。
结论
综上所述,超低能耗住宅的设计涉及到很多专业,电气作为建筑的配套专业,是必不可少的一个环节,需要在设计过程中配合装饰专业选择高效、合适的LED 的灯具。组合式灯具的设计方案中灯带在超低能耗验收时不可以安装。屋面光伏板的布置应做到既高效又不影响外立面、建筑疏散及其他设备专业系统的使用,其他方面应注意选择应选择合理的电气系统、电气管材线材,以及低碳节能的终端设备,尽可能为超低能耗建筑评审提供有力的支撑。
参考文献
[1] 北京照明学会照明设计专业委员会.照明设计手册[M].第三版.北京:中国电力出版社,2017.
[2] 中华人民共和国住房和城乡建设部.建筑节能与可再生能源利用通用规范:GB55015-2021[S].北京:中国建筑工业出版社,2021
[3] 建筑太阳能光伏发电应用技术标准:DG/TJ08-2004B-2020 [S]:同济大学出版社出版,2021
[4]市超低能耗建筑技术导则(试行)沪建建材〔2019〕157 号 [S]
[5]关于加强超低能耗建筑项目管理的相关规定 沪建建材〔2022〕613号 [S]