影响大水深水下钻孔爆破功效原因分析
龚正春 冉渔
长江重庆航道工程局 重庆 400011
随着我国大力发展长江黄金经济以来,船舶等级和装运量越来越高、越来越大,水运事业也迎来了蓬勃的发展。近些年来,我国的水上通航里程迅速增加,对于已经通航的河流航道进行拓宽,提高通航等级的情况十分普遍。根据近几年航道整治及港口码头等水下钻爆工程施工资料统计,主要从施工水深及地层岩性和爆破器材性能三个方面分析对钻孔进尺和爆破炸药单耗的影响。
一、影响因素分析
1.施工水深
水体的深度对钻孔爆破功效的影响存在多个方面,主要是爆破和钻孔效率影响。
(1)对于水下钻孔岩层爆破设计来说,水介质的影响应是首要考虑的因素:
①由于水压的影响,有一部分能量要消耗在克服水压上,从而降低了能量利用率;
② 由于水介质的存在,将使爆破气体中 NO2、SO2、H2S、NH3 等气体都溶解于水中,从而降低了膨胀压力,这些都会影响爆破质量;
③ 由于水的存在,将改变炸药的不耦合系数,减少了应力波的损耗,有利于爆破作用。
(2)水深对钻孔效率的影响:
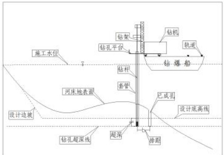
由于水下钻孔爆破工艺相对于陆上有所不同,主要一点就是水下钻孔需要在钻孔时利用一根套管穿透水层,目的是孔位成孔后帮助药包顺利装入钻孔内,这就需要钻成一个钻孔后随即装填入药包,而陆上钻孔时集中装药,不必“一管一钻一装药”,即钻孔前先下套管,再从套管中下钻具,钻孔完成后,拆除钻具,套管不动,利用套管完成装药,移除套管转入下一孔位作业。
(3)水深对装药效率的影响:水下钻爆通常采用毫秒延时电雷管和2#岩石乳化炸药,性能指标能满足防水要求与安全。① 水越深压力越大,且套管长,药包装入孔内越困难;②水深导致连接导爆网络的连接线越长,增加了工程造价,线路越长越容易出差错,影响施工效率。装药与连线均为人工操作。
钻机钻孔示意图(图1)

2.地质岩性
(1)岩体结构面与不均质性对爆破作用的影响
岩体中存在着大量的节理、裂隙、层理和断层等自然结构面,这些自然缺陷的存在对水下爆破作用产生了很大的影响,
(2)岩石物理力学性质对爆破作用的影响
由岩石破碎机理可见,岩石的最终破坏是由爆炸产生的作用力超过其强度极限所致,它说明岩石的破碎状态与爆炸能量和岩石的力学性质密切相关。在一定的外界条件下,为了达到一定的破碎效果,装药的多少主要依据岩石的力学特性而定,岩石的强度被作为确定炸药单耗的主要依据。
(3)岩石波阻抗对爆破作用的影响
爆破实践表明,爆炸应力波和爆生气体对岩体的破碎作用过程,随岩石波阻抗的不同而异。根据岩石波阻抗对爆破作用的影响,可将岩石分为三类:
① 高波阻抗岩石
波阻抗为 10×105~25×105g/ (cm2·s),致密坚硬完整的岩石,其特点为内聚力大、强度高,应力波在其中传播时衰减速度较慢。岩石的破坏主要取决于应力波强度。
② 中波阻抗岩石
波阻抗为 5×105~10×105g/ ( cm2⋅s ),致密坚硬或中等坚固、有节理或裂隙存在的岩石,其内聚力、粘结力及强度均较低。岩石的破坏是应力波(主要是入射波)和爆生气体综合作用的结果。
③ 低波阻抗岩石
波阻抗小于 5×105g/ ( cm2⋅s ),软岩或多孔塑性的岩石,其粘结力和强度都很小。岩石主要是在爆生气体膨胀压力作用下,克服岩石的粘结力和摩擦力而被破坏。
1.水深对炸药和雷管性能的影响
(1)水深对乳化炸药和水胶炸药性能影响,更主要的体现在炸药爆速、猛度的影响上,这可能与水压的作用使炸药的密度发生了改变,从而影响了炸药爆速、猛度等炸药爆炸性能有关。
在水下钻孔爆破中,常用的炸药为乳化炸药、水胶炸药、胶质炸药以及高密度铵梯炸药用塑料壳作外防水。
(2)现场试验资料证明,乳化炸药爆破性能随水深和浸泡时间增加而下降,在 10m 水深中浸泡一段时间后,炸药的爆速会下降 11% ,猛度下降 10% ,而当水深增加到时 30m ,爆速将衰减 26% ,而猛度衰减 33% 。
2.水深对雷管性能的影响
大深水条件下,爆破器材的抗水、抗压性能直接影响水下钻孔爆破的效果,但水深对炸药爆速的影响规律,以及水深对起爆雷管的延期时间精度、水下起爆网路的传爆可靠性影响等问题,现有的资料并没有给出十分明确的结论,需通过试验加以研究,以便在实际施工中采用安全、可靠的爆破器材,确保爆破效果。常用的起爆雷管有普通塑料导爆管雷管、高精度塑料导爆管雷管以及数码雷管。
实验过程
① 试验试块的准备:试验铅板直径为 35mm ,厚度为 5mm ,首先在铅块靠近边缘处钻一小孔,为了能使钢丝穿过而后系上绳索方便下沉与捞起。用绝缘胶布将雷管固定在铅板中心,雷管底部需贴紧铅板,最后将铅板试块放入塑料袋中,塑料袋可避免铅块的丢失,且袋中可加入石块使之下沉。
② 起爆器:采用CHA-1000 高能脉冲起爆器。
③ 雷管爆炸后,逐个检查爆炸装置内的铅板,记录未能正常起爆的雷管发数。
④ 采用游标卡尺逐个测量穿孔直径并记录,每个铅板作垂直的两次测量,取两次测量结果的算数平均值作为该片铅板穿孔的测量直径。
3. 岩石地质对爆破的影响
与陆地爆破一样,作为爆破对象的岩体是影响水下钻孔爆破作用与效果的自然地质因素。充分认识和了解岩体的地质赋存条件、构造、组织结构以及岩石的物理力学性质等,是获得良好水下爆破效果的基本保证。
二、爆破器材性能分析
三、功效影响分析
根据对不同施工水深的爆破区域进行分析统计,得到下表。
莲沱水下爆破功效统计(表1)

说明:辅助时间——除去正常钻孔作业时间,主要由安装拆卸套管、上下钻杆、填塞药包、连线起爆时间等组成。影响辅助时间的长短,主要由安装拆卸套管、上下钻杆和填塞药包有关。每次连线起爆时间基本相同,与水深影响不大。
1.施工水深与炸药单耗
炸药单耗随着施工水深的加大逐步增加,这是由于一部分能量要消耗在克服水压上,从而降低了能量利用率。
2.炸药单耗与岩石坚硬程度的关系
岩石的破碎状态与爆炸能量和岩石的力学性质密切相关,岩石越坚硬完整度越高对炸药单耗的影响越大。岩石覆盖层影响钻孔开孔,特别是卵石层容易发生卡钻现象,当覆盖层较厚时一般先由挖泥船清底后再钻孔爆破。岩层比较破碎时,也易发生钻杆倾斜和卡钻现象,容易发生塌孔和缩孔,降低钻孔成孔率和钻进功效,后续装药环节也不能顺利进行。
水下爆破炸药单耗的主要由施工水深与所爆岩层地质情况有关。
3.钻孔钻进功效与施工水深
根据统计资料钻机钻孔功效受施工水深影响不大,由于水压的加大,钻孔气压逐渐减小,对钻进效率稍有影响,岩石坚硬程度才是影响钻孔钻进效率的主要因素。
4.施工水深与钻孔辅助时间
随着施工水深的加大辅助钻孔作业时间也在增加,当水深超过 30m 以后,水深加大后辅助钻孔时间增加得越加明显,从而导致钻爆功效的降低,增加了成本费用。
四、结语
水下钻孔爆破施工中,影响施工效率的主要因素是施工水深与岩石岩性和爆破器材的性能。
参考文献
[1] 《水运工程爆破技术规范》(JTS204-2008).
[2] 《爆破安全规程》(GB6722-2014).
[3] 《精细爆破》,谢先启编著,华中科技大学出版社.
[4] 《爆破设计与施工》,汪旭光主编,冶金工业出版社.