幼儿园室内建筑施工技术与管理研究
顾渊
上海嘉定联谊建筑装潢有限公司 上海 201499
0. 引言
建筑行业的技术、建材的更新给室内装修带来新的机遇,室内建筑技术管理在幼儿园建设中具有核心重要性,通过科学规划、精细施工与智能运维,确保建筑空间的安全性、功能性与耐久性,为儿童创造布局合理、动线流畅且符合其生理心理特点的成长环境,同时有效控制建设与长期维护成本。
而幼儿园环保建设则尤为关键,这直接关乎幼儿的健康与生态意识的早期培育。选用安全无毒、低碳环保的建筑与装饰材料,严格把控室内空气质量,优化自然采光通风,并融入节能节水技术,不仅能最大程度减少有害物质暴露,保护儿童脆弱的呼吸系统与免疫系统,预防疾病,更能通过实体环境潜移默化地传递可持续发展理念,在孩子心中播下绿色种子,培养其未来对环境的责任感。因此,将严谨的技术管理与深度的环保理念深度融合于幼儿园建设中,是实现儿童身心健康守护与生态文明教育双重目标不可或缺的基础保障。
1. 室内建筑施工技术概
室内建筑施工技术分类主要分为结构加固技术、表面处理技术、装饰覆盖技术和功能实现技术[1]。结构加固技术主要是为了提升房子的安全性能;表面处理主要包括墙面找平、做防水等;装饰覆盖技术包主要为墙面、地面提供瓷砖铺设、安装吊顶等;功能实现技术主要是基于后期软装进行合理设计配合,包括水电敷设、安装橱柜等,至此整个室内建筑施工完成,
施工技术在不断进步,社会要求也在不断提升,建筑施工技术分类有助于提高施工过程中的员工专业性和管理的准确性,符合建筑施工的多样化需求。
(1) 清水饰面装饰技术。该技术是 的装饰手法,通过对结构基层如混凝土、砖、木表面进行精细 明的保护剂而不做覆盖性装饰。主要应用于需要体现质 特色餐厅、LOFT 空间或高端住宅的局部墙面、梁柱等。 工以获得平整光滑或带有特定纹理的基层,后期则通过精细打磨 如清水混凝土保护剂、木蜡油来增强其耐久性、防水性和质感,同时保持材料的原始色泽与纹理清晰可见
(2) 抹灰装饰技术:该技术是最基础且应用
的墙 平和装饰手段,通过利用砂浆在结构基层上涂抹形成平整或带有特定纹理的覆 内外墙面、顶棚,作为基层找平、保护结构,或直接作为最终饰面如毛坯墙、 附着的基底。施工方法通常包括基层处理、分层抹灰)、养护等步骤,面层可根据最终需求进行压光、拉毛或保留自然刮痕等处理。
(3) 涂裱粘贴装饰技术: 整基 层或特定基材上,涂刷液态材料例如涂料、裱糊柔性卷材例如壁布或粘贴块 技术。其应用范围极其广泛,涵盖了室内外墙面、顶棚、地面的 纸壁布、卫生间厨房的瓷砖、石材背景墙等。施工方法依据材料而 涂刷面漆;裱糊施工需基层处理、涂刷基膜、裁切材料、涂刷专用胶、 粘贴施 层处理、弹线定位、调制粘结剂、涂抹粘结剂、铺贴材料、调整平整度及清理缝隙
(4) 龙骨类装饰技术:该技术是一种首先搭建轻质骨架,然后在骨架上覆面安装饰面板材来构造非承重隔墙、吊顶、造型墙面或隐藏管线设施空间的装饰方法。它主要用于室内空间的分隔、顶面造型、背景墙以及需要空腔走线或保温隔音的部位。施工方法通常包括:根据设计在结构顶、地、墙面上弹线定位,安装沿顶、沿地龙骨及竖向龙骨,调整龙骨间距和垂直度并固定牢固;在龙骨框架内填充隔音或保温材料;最后将饰面板材用自攻螺丝或特定卡件固定在龙骨上,完成基础骨架和覆面,后续还需进行板材接缝处理并施加最终饰面。
包括 3D 打印装饰在内的新兴技术正逐步应用于建筑装饰领域。这些技术凭借其提升施工效率、节约成本并减少材料消耗的优势,为行业开辟了新路径。
分析表明,每项技术均具备特定的适用场景与施工要点。在具体实践中,需综合考虑建筑的功能定位、设计理念及所处环境因素,选用匹配的施工工艺,以达到理想的装饰效果。
2. 建筑施工质量控制
施工质量控制是为了确保施工技术达到标准,随着自媒体技术发展,施工技术科普逐渐增多,打破了以往施工和业主双方信息不对称的情况,业主对施工要求逐步增高,也会倒逼质控质量不断提高。
(1) 项目人员素质与施工专业素质提升。项目人员素质与施工专业素质提升是保障施工质量的核心要素。高水平的管理人员具备扎实的专业知识、丰富的实践经验和敏锐的质量意识,能科学制定方案、精准识别风险、严格监督执行,确保质量体系有效运行;而技能精湛、训练有素的作业人员则能准确理解图纸、规范操作工艺、减少人为失误,直接决定实体工程的品质。公司需要通过持续开展专项技能培训、安全质量教育及新技术应用学习,不断提升全员专业能力,严格实施工艺标准化交底、样板引路和首件验收制度,确保施工标准落地。
(2) 施工进场材料质量把控。施工进场材料质量把控是确保工程质量的基础环节,直接决定了工程实体的安全性与耐久性。优质材料是构筑高品质工程的物质前提,若材料存在缺陷,即便工艺精湛也难以弥补。材料进场时,必须实行“三证一报告”核验制度,同步进行外观检查、规格型号核对与数量清点。关键结构材料及涉及安全环保的材料,必须由监理见证取样确保性能达标。对不合格材料坚决清退并追溯供应商责任,杜绝未检先用或边检边用,从源头筑牢工程质量第一道防线。
(3) 施工场地保持优良。施工场景环境优良是保障施工质量的基础条件,直接影响工艺实施精度、材料性能稳定及作业安全,对实体质量形成至关重要。恶劣环境易导致混凝土开裂、焊接缺陷、测量偏差等问题。施工中需科学规划场地布局,确保作业面平整、排水畅通,避免积水浸泡地基,对特殊区域施实时沉降及变形监测,严格管控现场扬尘,保障施工照明与通风,尤其在室内及地下工程中,推行文明施工,及时清运垃圾、规整物料,消除杂乱环境引发的操作失误或安全隐患。
3. 幼儿园室内装修环保理念设计原则
幼儿园室内装修严选国标环保建材,杜绝甲醛 /VOC 污染,要强化通风设计,采用无毒辅料与可再生材料,施工过程控制扬尘;竣工后专业检测并空置散味,确保环境安全无害,守护儿童健康。
(1) 环保材料的全面应用。幼儿园践行绿色装修理念,首要在于全方位应用环保材料。墙面可选用低 VOC水性漆,透气环保易洁;或采用天然硅藻 的功能。地面装修中,教室及图书馆区域宜铺装环保可再生、脚感舒适的竹木地 ;楼梯走 则推荐使用节约资源的再生PVC 地板。顶棚可选用岩棉板或玻璃棉板,其 兼具保温隔热、吸音阻燃性能。落实绿色装修还需科学管控施工全过程: 耐久性及认证;做好材料防潮防霉处理以延长寿命;推广装配式装修,减少现场灰尘、噪音及建筑垃圾污染,为师生创造更洁净的教学环境。
(2) 生态空间的营造:幼儿园生态化装修突破传统压抑感,通过立体绿化策略为师生创造亲近自然的学习环境。在公共区域(如大厅、楼梯间)设置绿植景观墙,结合垂吊与攀援植物营造层次感[4]。教室、图书馆等空间点缀吊兰、常春藤等具有空气净化功能的小型盆栽。采光良好的走廊可沿墙布置迷你植物园。屋顶绿化是关键环节,优选耐旱抗风的多肉(如鹿角海棠、马齿苋)及地被花卉,既隔热节能、保护屋面,又可作为都市农艺实践基地。过渡区设置科普栏,图文并茂展示植物生态功能。
4. 施工案例分析
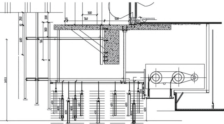
本文以某幼儿园实际施工技术和管理为例,改施工中大面积采用了铝板、不锈钢以及石材等材料,主要用在幼儿园的入户大厅,施工要求较高。铝板施工造型图如图1 所示。
图1铝板施工造型图

如图 1 所示,中庭选用木纹转印铝板,通过内外 15 层叠加实现,单位面积重达 300kg/m2 。为满足荷载与结构固定要求,支撑体系采用50mm×40mm 竖向槽钢,并在其底部焊接40mm×40mm 方管作为铝板吊挂节点。
大堂超高铝板吊顶施工,如图2 所示,需克服原结构顶与完成面间6.3m 高差,其中铝板造型最大高度5m。项目团队通过钢架转换层设计验算,选用 300×300×18 钢板为埋板及 16×190×4 化学锚栓等材料,保障 5t吊顶铝板安全。
图2大堂超高铝板吊顶施工图

5. 结语
本文围绕幼儿园室内建筑施工技术与管理展开,系统梳理了结构加固、表面处理、装饰覆盖及功能实现四大类室内施工技术,解析了清水饰面、抹灰、涂裱粘贴、龙骨及新兴 3D 打印等工艺在幼儿园场景中的适用性与关键要点。针对质量控制,提出人员专业化、材料准入制、场地文明化方案,确保工程安全、耐久与精细化。并进一步将环保理念深度融入装修全过程:材料端严选低VOC、可再生产品,工艺端推广装配式、低扬尘施工,空间端通过立体绿化与屋顶农场营造生态体验。以某幼儿园入户大厅铝板、不锈钢、石材等高标准施工为例,验证了钢架转换层、结构荷载验算等关键技术落地效果。项目结果为幼儿园建设提供了一体化的实施框架,对提升儿童空间品质及生态文明启蒙教育具有示范意义。
参考文献:
[1] 薛璇 . 室内墙面饰面板的 挂法施 工技术 [J]. 建筑·建材·装饰 ,2025(6):133-135.
[2] 邓培 工程建设与设计 ,2025(8):120-122.
[3] 季筠 河南建材 ,2025(1):124-126.
[4] 韩 ·装饰 ,2025(4):85-87.
[5] 何东 国建筑装饰装修 ,2025(5):162-164.
[6] 王业 2025(4):155-157.
[7] 崔莉 ,2025,23(2):118-120.
[8] 筑装饰装修 ,2024(16):112-114.
[9] 建筑装饰装修 ,2024(20):169-171.
[10] 吴迪 建筑室 建筑与装饰 ,2024(23):136-138.
作者简介:顾渊(出生年份1981.08.12),性别:男,籍贯( 省市) :上海,民族:汉,职称:助理工程师,学历:本科,公司名称:上海嘉定联谊建筑装潢有限公司
研究方向:施工技术与管理。