BIM 技术赋能古建筑保护:山东桓台王渔阳故居的实践与分析
袁庆铭
淄博职业技术大学 山东淄博 255300
一、引言
山东省桓台县新城镇的王渔阳故居,是鲁中地区保存相对完好的明清时期四合院建筑群,集中体现当地传统建筑风格。桓台历史悠久,早在 4000 年前就出现了人类文明,境内史家遗址出土了中国迄今最早的甲骨文。公元前 206 年设县,1228 年置新城县,1914 年因境内有齐桓公戏马台,更名为“桓台县”至今。现存建筑以江北青箱和尚书府第为主体,因建筑史学研究价值与美学艺术价值极高而留存。当前,王渔阳故居的核心需求是古建筑修复与保护,如何用科学技术修复受损建筑、加固结构,延长使用寿命、延续历史价值,是保护工作的关键。
建筑信息模型(BIM)技术凭借可视化呈现、多维度协调、全流程模拟、方案优化及精准制图等优势,为古建筑保护、修复及模型重构提供重要技术支撑。依托互联网平台,BIM 技术还能实现修复数据共享,促进跨主体交流与行业技术发展。将 BIM 技术作为核心数据平台,探索其在王渔阳故居等古建筑维修项目中的广泛深入应用,对推动古建筑保护数字化转型意义重大。
二、王渔阳故居概况
(一)建筑形制与工艺特色
王渔阳故居建筑群以砖木结构为核心骨架,兼具功能性与艺术性。屋面统一铺绿瓦,形成规整天际线;柱脚用石墩承托隔绝潮气,地面铺绿石板,防滑又美观;木雕图案造型精美、题材丰富且文化内涵深厚,既展现工匠艺术才华,又传递人与自然和谐共生理念及对财富、家族、人际的美好追求。
(二)保护等级与历史变迁
王渔阳故居于 1986 年建馆并对外开放,1992 年被列为省级重点文物保护单位,1995 年定为山东省优秀社会教育基地,1998 年公布为首批山东省爱国主义教育基地,2019 年被国务院公布为第八批全国重点文物保护单位。历史上,王渔阳故居历经多次变故:民国时期第一进院落因火灾损毁,政府曾计划“修旧如旧”修复,却因资金短缺等中止;改革开放后,故居旅游开发成政府重点项目,政府获院落使用权计划改造成博物馆,同样因资金不足、人员管理机制不完善,博物馆未能持续运营而关闭。如今,王渔阳故居产权由政府与院内居民共同持有,“政企(民)混合产权”模式导致管理权责模糊、保护责任难落实。
(三)当前面临的保护困境
岁月侵蚀使王渔阳故居建筑主体明显老化,文物保护法规对修复材料“原真性”的要求,进一步提高了修缮技术难度与成本。同时,旅游业快速发展带来新挑战:部分居民为满足经营需求,未经文物部门审批擅自扩建、翻修建筑,破坏了故居原有传统空间格局,导致建筑风格统一性丧失。
综上,破解资金、权责、合规性等难题,推进王渔阳故居系统性保护与修缮,已成为亟待解决的关键问题,其后期保护成效直接关系本建筑群历史价值的传承。
三、BIM 技术在古建筑修复与保护中的应用
(一)BIM 技术在国内外古建筑保护中的应用实践
国内方面,众多学者探索 BIM 技术与古建筑保护融合:王景民等提出“古建筑 DNA 基因保护技术”与 BIM 技术结合,以杭州灵隐寺修复工程为案例论述;石若利等整合 BIM、三维扫描与 GIS 技术,构建多技术协同框架;张平等人聚焦客家古建筑,用 BIM 技术实现数字化模型重建,为历史信息留存与后期维护奠定基础。
国 际 方 面, 相 关 研 究 注 重 实 际 应 用: 乌 克 兰 学 者 PetroHryhorovskyi 团队以本国大型历史建筑为对象,用 BIM 技术评估建筑结构稳定性并制定紧急修复方案;意大利学者 Carlo Biagini 等以 NomDe Maria 教堂为案例,研究BIM 与点云扫描技术结合应用;美国学者Woo Wilsmann 等人将 BIM 技术与建筑改造数据采集工具联动,通过逆向建模为历史建筑构建三维可视化模型,助力科学制定改造与保护计划。
综合国内外实践,当前 BIM 技术在古建筑修复与保护领域应用方向明确:以三维扫描技术为数据基础,依托 BIM 技术构建古建筑构件级信息模型与虚拟可视化场景,精准还原古建筑原始风貌,为修复方案制定、施工指导及后期运营维护提供全流程技术支持。
(二)BIM 技术在古建筑修缮中的应用优势
BIM 技术在古建筑修缮领域的应用价值,主要体现在信息表达、模型应用及数据共享三大核心优势:
1. 精准传递信息,契合保护初衷。BIM 技术高精度信息表达能力,可实现古建筑修缮信息深度可视化,既精准还原建筑外观细节,又将构件蕴含的历史工艺、文化符号等隐性信息融入模型,让抽象历史文化信息直观呈现。这种“形制 + 文化”双维度精准还原,契合我国古建筑“修旧如旧、传承文化”的保护初衷,为修缮原真性落地提供技术保障。
2. 模型灵活可调,降低修缮风险。BIM 技术灵活性体现在模型动态应用,设计与管理人员可通过三维可视化模型多视角审查修缮方案、监督施工过程。在方案阶段提前排查构件尺寸偏差、工序冲突、细节遗漏等问题,施工前识别并纠正潜在风险,避免方案疏漏导致的返工或对古建筑二次损伤,提升修缮科学性与效率。
3. 构建共享数据库,助力长效发展。依托 BIM 技术可建立古建筑全周期信息库,整合存储建筑历史数据、构件参数、修缮方案、施工记录等信息。研究人员或管理方可将 BIM 数据上传至互联网平台共享,既为古建筑后期维护提供完整信息依据,保障维护连续性,也为行业内其他修缮项目提供参考,促进技术经验交流推广,推动古建筑修缮领域协同发展。
四、BIM 技术在王渔阳故居修复与保护中的应用
(一)数据信息收集与前期处理
王渔阳故居 BIM 技术应用初始阶段,需以山东省文物保护及古建筑修复原则为遵循,结合当地法规要求,通过“资料梳理 + 现场勘察”收集数据,具体流程与内容如下:
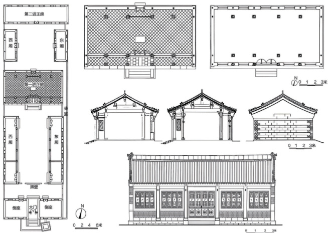
1. 多维度数据采集:含两类核心信息,基础资料类包括故居历史文献记载(建造背景、历代修缮记录)、现存建筑现状照片、既往保护规划文件等,用于追溯建筑历史原貌与演变脉络;现场实测类通过实地测量与损坏调查,获取建筑空间坐标、构件尺寸、结构布局及损坏程度等数据。经勘察,王渔阳故居由二进院落构成,总建筑面积约2600m2 ,第二进院落受损最严重,是当前优先修缮区域。
2. 数据处理与模型基础构建:先创建符合建筑实际布局的轴网与标高体系,确保空间定位准确;依据实测尺寸界定内墙、外墙及斜屋顶空间位置与轮廓;细化建筑单体结构参数,如院落主楼为五开间,进深(七檩)约 12.5m ,左右厢房为三开间,进深(五檩)约 8.6m ,主厅为七开间,进深(五檩)约 7.1m 。建模中重点还原房间布局、构件衔接等细节,完成第一进院落平面图数字化绘制,为后续模型深化与修缮方案设计奠定基础(图1)。
图1 王渔阳故居总平面图、第一进正房复原平面图及现状平面图、正房剖面现状图- 剖面复原图及立面现状图、正房立面复原图(由左到右,由上到下,来源:刘婷婷绘)

(二)BIM 模型构建
完成多维度数据采集与整理后,结合古建筑复合结构空间信息特征,选用 Revit 软件为核心建模工具,通过“构件参数化定义—数据库搭建—三维模型生成”流程,构建王渔阳故居信息化模型,具体步骤:
1. 构件分类与参数化输入:先拆解分类故居古建筑核心结构,明确檩条、屋檐、椽子、梁、柱等关键构件单元;再将现场实测的构件尺寸、材质等数据作为核心参数录入“族”模型,尺寸参数如主楼与主房间屋檐下立柱直径均为 260mm ,确保同类构件尺寸一致;材质参数明确木材种类(银杏木、楠木、紫荆木、红雪松及檀香木等),为后续材质可视化与修缮材料选择提供依据。
2. 数据库搭建与三维模型生成:将已定义参数的同类构件归类整合,形成标准化、结构化的故居古建筑构件数据库,实现参数信息统一管理与调用。在此基础上,重复调用数据库构件参数,逐步拼接、组装各结构单元,最终生成故居古建筑初步三维 BIM 模型,完整还原建筑空间结构与构件关联关系。
(三)信息录入与构件关联优化
王渔阳故居古建筑 BIM 模型构建,需在还原建筑形制基础上,整合人文价值与周边环境信息,实现“形制 + 文化”双重精准呈现。同时,针对门窗等精细装饰构件,通过结构化建模流程还原细节特征:
1. 多维度信息分类与录入:将信息划分为属性信息与空间信息两类。属性信息含古建筑核心构件材质、结构类型及外部尺寸等基础数据,作为模型参数化构建核心依据;空间信息包括古建筑现状照片、周边环境总平面图、场景视听资料等,通过链接外部文件或嵌入模型注释录入,直观呈现建筑与环境空间关系,为修缮方案环境协调性评估提供支撑(图2)。
图2 王渔阳故居第二进正房结构爆炸图、第二进正房屋架图、从室内看向回廊(由左到右,由上到下,来源:邹雪萍提供)

2. 精细构件的结构化建模流程:针对门窗等设计精巧的构件,采用“族模型创建—细节参数化—三维生成”结构化流程建模。故居门窗表面有雕刻、镂空、浮雕及镶嵌等精湛装饰工艺,题材含吉祥寓意(吉祥兽、鸟类、花卉及传统吉祥图案)与文化故事(桃花源记、八仙过海、三英战吕布等)。建模时通过细化族模型纹理贴图或嵌入装饰细节参数,将文化元素与构件模型关联,实现“形”与“意”同步还原,留存建筑人文价值信息。
(四)古建筑专属信息库构建
依托BIM 技术信息集成与关联特性,整合王渔阳故居空间信息(建筑布局、构件位置)与属性信息(材质、尺寸),构建覆盖建筑全生命周期的专属信息库,核心功能与价值如下:
1. 信息库核心数据维度:以构件为基本单元,为每个建筑组件建立标准化数据报告,核心数据含基础参数(构件规格型号、详细尺寸)、生命周期数据(设计使用寿命、建议更换时间节点)、维护管理信息(木结构防潮防腐方案、石构件防风化处理方法等)。
2. 支撑高效运维管理:信息库直接服务古建筑修复后日常维护,维护人员无需现场反复勘测,调取数据即可根据构件使用寿命、更换时间节点制定精准维护计划,避免信息缺失导致的维护滞后或过度维修,提升运维效率与精准度。
3. 实现全周期数据闭环:在 BIM 系统数据库中同步存储每次维护记录(维护时间、内容、所用材料、实施效果),形成“初始数据—维护计划—执行记录—数据更新”全周期数据闭环。累计数据为后续维护提供持续支撑,也为建筑群长期保护策略优化、历史变迁研究提供依据,助力故居实现可持续发展。
(五)基于BIM 的加固措施模拟与风险管控
依托 BIM 系统虚拟可视化功能,可提前模拟王渔阳故居古建筑受损构件拆除、更换流程,核心价值体现在风险预判与施工管控:
1. 前置模拟规避拆除风险:通过 BIM 模型还原受损构件(腐朽柱体、开裂梁架)实际状态,提前模拟拆除与更换全流程,清晰呈现构件受力点及与周边结构连接关系,避免因受力逻辑判断失误,导致仓促拆除引发建筑局部倒塌或未受损构件二次损坏,保护古建筑本体安全,提升施工安全性与可控性。
2. 可视化投影制定加固方案:借助 BIM 可视化投影功能,在修复施工前直观呈现拆除、更换工序的构件细节与作业范围,为制定安全措施与加固方案提供依据。针对拆除中可能的结构失稳问题,提前规划临时支撑点位与加固方式;对更换后的新构件(复刻木柱、梁件),模拟与原有结构衔接精度,预设加固节点(榫卯补强、金属连接件隐蔽处理),最大限度降低修复二次损伤风险,保障修缮科学性与安全性。
五、结论
本文将 BIM 技术应用于王渔阳故居古建筑保护,构建了覆盖该建筑群修缮项目的专属数据库,为管理人员提供多维度、实用性强的技术支撑,具体表现为:通过模型修正设计方案、评估施工方案可行性,辅助降低工程成本;实时开展过程质量监督,提前规避施工二次损伤风险,强化施工安全管理;借助 BIM 全景展示功能,向游客直观呈现古建筑历史风貌,助力文化传播。为进一步提升保护成效,王渔阳故居古建筑保护需推动 BIM 技术与 IPOGEA、ITKI 等国际先进保护策略融合,形成更系统保护体系。秉持“整合历史资源、融合区域生态”理念,以“齐国故都”做深文化赋能,以“建筑之乡”强化产业联动,将王渔阳故居纳入鲁中地区“大博物馆”生态体系,实现历史与建筑自然共生。
此外,王渔阳故居后续改造建议重点开展技术研究:优先选用当地环保及可再生材料,探索低能耗、低碳排放的绿色建筑设计路径,推动其从“修复保护”向“可持续发展”长效转型,为古建筑数字化保护与活化利用提供参考范式。
作者简介:袁庆铭(1982-),男,淄博职业技术大学建筑工程学院副教授,硕士,主要从事建筑历史与理论、城乡遗产保护研究。
基金项目:山东省人文社会科学课题“中国古代建筑工程管理和建筑等级制度数字化模型建构与文化遗产保护研究”(2023-WHLC-016);淄博市社会科学规划研究项目“中国古代建筑工程管理文化遗产保护成效评估技术框架研究”(23ZBSK102)。