城市核心区康复医疗设施高效布局与人性化环境塑造探析
蒋文凯
中冶长天国际工程有限责任公司 湖南省长沙市 41000
引言
城市核心区土地资源稀缺且建设强度较高,康复医疗设施作为重要公共健康基础设施,急需探索高效空间布局与人本化环境塑造新模式,深圳市民政康复中心A院区处在福田区成熟片区,该项目在有限用地条件下创新性达成康复护理敬老与门诊多功能复合布局,还借助建筑形体优化、交通组织合理及人本空间设计等手段,打造出高密度环境下功能高效且环境友好的康复医疗空间,具备代表性和示范意义[1]。
一、高密度城市核心区康复医疗设施建设面临的挑战
1. 土地资源稀缺与用地不规则
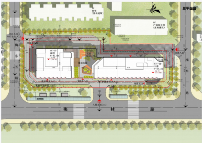
深圳市民政康复中心A院区坐落在福田区核心片区,其具体位置处于梅林路 26 号,周边城市开发强度特别高且土地利用很紧张。这个项目的用地面积仅仅只有7141.99 平方米,整体呈现出东西向狭长的不规则形态,东西长度大约为145 米,南北宽度最窄的地方仅有23 米,最宽处也不过34 米。由于受到地块红线、规划退线以及周边老旧建筑日照等因素的影响,实际可以进行建设的范围十分局促。面对土地资源高度紧缺以及不规则用地形态的状况,项目采用体块切割、功能有序分区与立体空间开发的方式,实现了空间的高效利用和功能的合理布局,满足了高密度城区内康复医疗设施的建设需求。
2. 功能需求复杂与空间布局矛盾
深圳市民政康复中心A院区把护理中心、门诊部和敬老院功能集合在一起,整体规划安排了300 张床位以满足多元需求,这里兼具医疗康复、护理服务、老年照护和门诊接诊等多种功能,其功能布局呈现出高度复合的特点,该项目用地形状狭长且不规则,周边住宅分布十分密集,这就需要严格控制建筑高度、间距以及日照影响,并且要满足消防、交通、人防、环保等多重技术标准,功能板块的组织必须兼顾高效流线、空间适宜性以及环境协调性等方面,所以存在较大的布局矛盾,设计团队通过采用左低右高的体量处理方式、进行分区布局以及整合立体空间,有效破解了功能复杂和用地受限之间的矛盾 。
二、深圳市民政康复中心A院区高效布局策略分析
1. 多功能板块高效组合
深圳市民政康复中心A院区在狭长且不规则用地条件下,采用“护理中心+门诊部+敬老院”三大功能板块组合布局方式,充分整合康复、护理、养老、门诊等多元需求以实现土地集约高效利用,项目借助空间功能的有序组合形成西低东高的建筑形态,巧妙回应周边住宅区日照影响来保障周边环境舒适性,具体布局方面,护理中心设置在主楼提供专业康复与护理服务,门诊部集中于裙楼以便于患者接诊与流线组织,敬老院安置在副楼以满足老年人群生活照料需求,各功能区通过“康复护理街”进行水平联系并结合垂直交通系统形成高效便捷内部流线,功能板块既相对独立又能高效协同,体现出高密度核心区康复医疗设施多功能复合、高效组合的设计思路。
2. 立体空间开发与复合利用
深圳市民政康复中心A院区面临核心区用地紧张、空间局促的现实状况,通过立体空间开发来最大化释放建筑使用功能和公共活动空间,地下三层进行整体复合利用,除了提供 180 个机动车停车位之外,还整合设置医疗辅助、设备用房以及战时人防掩蔽空间,充分挖掘了地下资源,地面部分首层大面积架空形成开放广场,保障人群的通达与集散,同时缓解地铁站与梅林路周边的交通压力,裙房四层与塔楼采用架空设计延伸出立体屋顶花园系统,形成多功能康养、休闲与儿童活动空间,打破传统医疗建筑平面化空间组织的限制,高层主楼集中布局护理单元实现垂直整合,让功能区实现高效叠加[3]。(如表,如图)


三、人性化环境塑造策略与效果1. 康复绿洲理念与空间体验提升
深圳市民政康复中心A院区在整体设计当中提出“康复绿洲”的理念,把建筑不只是当作康复医疗的场所,更将其定位成患者心理重建与身心康复的希望港湾,设计灵感来源于自然元素,建筑立面借助“叶片”意象进行提炼,锯齿状窗户和流畅的横向线条模拟叶脉纹理,整体造型呈现出动感舒展的状态,体现出生命力与生机[4]。内部空间着重营造自然温馨且舒适的体验氛围,通过大面积绿植布置、柔和色彩搭配以及自然采光引入,有效降低医疗空间所带来的压抑感,缓解患者的焦虑情绪,屋顶花园、室内康复街区以及各层休憩节点,构建起多层次“绿洲式”康复环境,促进患者心理放松与康复积极性的提升,色彩设计采用自然柔和的色调,辅以局部鲜明的点缀,融合新兴色彩疗法的理念,丰富空间层次与视觉体验,整体空间氛围由“避风港、生长栖息地、康复绿洲、治愈花园”四大主题共同营造,助力打造兼具功能性与人文关怀的康复体验环境。
2. 多层次公共空间系统构建
深圳市民政康复中心A院区处于高密度且空间受限的城市核心区,采用立体复合设计方式系统构建多层次且开放共享的公共空间体系,以此缓解用地局促和公共空间不足的矛盾,首层进行大面积架空形成 860 平方米的开放广场,用于集散人流且便捷通达,塑造出友好又开放的城市界面以提升项目公共属性,裙楼与塔楼之间进行架空延伸出功能复合的屋顶花园,依托建筑形态变化打造自然疗养区、运动康复区、儿童活动区与生态种植区,形成空中立体绿化与康复空间以丰富患者、家属与职工的户外活动场景,局部空间内设置多处休憩区与绿化节点,满足康复人群、老年住户及市民多样化的停留、交流与康复需求。
3. 室内空间人性化细节设计
深圳市民政康复中心A院区在室内设计时注重把人性化细节进行系统落实,以此体现出对康复人群、老年住户以及医务人员的全方位关怀,整体空间是以自然且柔和的暖色系当作基调,同时结合绿植布置以及充足自然采光,从而弱化医疗空间所具有的冰冷感,营造出温馨又安全的康复环境,各主要流线采用的是宽敞通道设计,双层扶手和平缓坡道保障轮椅、病床能够通行便捷,地面材料都进行了全面防滑处理,以此提升人员行走过程中的安全性,护理单元、候诊区、卫生间等重点区域优化了空间尺度,兼顾了功能和使用过程中的舒适性,色彩系统采用背景色、主体色、点缀色进行分层搭配,结合色彩疗法理念来激发正向情绪反应,标识导视系统清晰又醒目,方便患者及其家属识别具体的通行路径,整体室内空间通过对各种细节进行优化,有效提升康复体验以及空间品质,助力实现医患安全、舒适、高效的使用环境。(如图)

四、核心区康复医疗设施设计的创新价值与启示
1. 复杂用地条件下空间效能最大化
深圳市民政康复中心A院区项目的用地处在福田区核心区域,地块呈现出狭长且不规则的形态,东西方向长度大约为145 米,南北宽度变化幅度比较大,最狭窄的地方仅仅只有23 米,场地整体显得十分局促,并且要满足严格的退线、日照、消防以及与周边住宅界面协调等要求,空间组织方面的难度相当大。面对复杂的用地限制情况,项目借助科学的体块切割以及高低错落的布局方式,形成了“西低东高”的建筑形态,同时兼顾了北侧住宅的日照通风需求。在功能分区方面,护理中心、门诊部、敬老院等多功能板块进行了高效组合,垂直空间实现了合理叠加,从而释放出地面活动空间。地下三层的功能较为复合,集合了车库、设备、医疗辅助、人防设施等功能于一体,立体空间的开发让土地利用率达到了最大化[5]。屋顶花园和首层架空广场进一步拓展了公共空间,提升了空间效能以及环境品质,充分体现出高密度、复杂用地条件下的高效空间利用策略。
2. 高密度环境下公共属性的保障
深圳市民政康复中心A院区处于城市核心区域,周边土地开发非常密集且公共空间极度匮乏,此项目在高强度土地开发这样的背景之下,依然系统保障了良好公共属性与开放共享空间,通过首层大面积架空设计打造出 860 平方米开放广场,能有效缓解周边地铁与主干道的人流压力,塑造出友好且开放的城市界面,满足患者、家属以及市民活动与集散需求,屋顶花园布局了自然疗养区、康养活动区、儿童活动区和生态种植区,可提供立体绿化与休憩空间,补充片区公共资源,内部空间设置了多处休憩节点与交流空间,能提升康复过程中的舒适体验与人文氛围,整体设计借助多层次、复合化的空间组织方式,在有限用地条件下最大化公共空间供给,助力实现高密度环境下康复医疗设施人文关怀与公共功能有机融合。
总结
深圳市民政康复中心A院区项目在高密度城市核心区有限用地当中,借助科学的功能组合、立体空间开发以及人性化环境塑造手段,创新性地解决康复医疗设施空间布局和环境营造之间的矛盾,案例显示合理的建筑布局、高效的交通组织加上人本关怀的环境设计方式,可在保障功能效率的同时提升患者体验和城市空间品质,具备良好的推广应用价值。
参考文献
[1]李宗虎. 人性化视角下的康复医疗护理单元空间研究设计——以合川第一人民医院康复医疗护理单元为例[D]. 重庆:重庆大学,2017.
[2]王世吉. 病案复印中人性化服务的实施效果[J]. 中国病案,2020,21(8):6-7,30. DOI:10.3969/j.issn.1672-2566.2020.08.003
[3] 陈 素 莲 . 病 案 复 印 中 人 性 化 服 务 的 实 施 与 成 效 [J]. 世 界 最 新 医 学 信 息 文 摘 ,2021,21(48):303-304.DOI:10.3969/j.issn.1671-3141.2021.48.143.
[4]古丽如克沙·卡地尔.分析公共建筑设计中的人性化设计方法[J].城市建筑,2021,18(03):108-110.DOI:10.19892/j.cnki.csjz.2021.03.30.
[5]闫学丽.公共建筑设计中的人性化设计方法[J].工程设计与施工,2025,7(01):71-74
作者简介:蒋文凯,男汉,1989 年10 月4 日,研究生硕士,中级工程师建筑设计