平战结合人防工程通风系统高效转换设计与实践研究
王耀彬
四川省建筑设计研究院有限公司 610041
一、引言
人防工程作为现代城市综合防护体系的重要组成部分,肩负着战时防护与平时服务的双重使命。其中,通风系统的平战高效转换能力直接关系到工程在不同运行模式下的安全性与功能性。随着城市化进程的持续推进和国防建设要求的不断提高,如何实现通风系统在平战模式间的快速、可靠转换已成为当前人防工程设计与建设领域亟待解决的关键技术问题。本研究立足于工程实践,通过系统性的设计与优化,为解决这一技术难题提供了切实可行的方案。
二、平战结合人防工程通风系统概述
2.1 通风系统功能特性
人防工程通风系统需要满足平战两种截然不同的运行需求。战时运行模式下,系统需具备三种基本功能:清洁通风功能在外界空气未受污染时,通过完善的消波除尘设施为掩蔽人员提供不低于 sin3/h ·人的新风量;滤毒通风功能在室外空气染毒情况下,依托高效除尘器及过滤吸收器实现对毒剂、生物战剂及放射性灰尘的有效净化;隔绝通风功能则在核爆、生化袭击等极端情况下,确保工程内部能够维持至少 3 小时的自循环运行,同时将二氧化碳浓度严格控制在 2.5% 的安全阈值内。
平时运行模式下,通风系统主要服务于地下空间的日常使用需求。作为地下停车场使用时,系统需保证每小时不少于6 次的换气频率,将一氧化碳浓度控制在 24ppm 以下;在火灾等紧急情况下,系统需快速切换至排烟模式,为人员疏散和消防救援创造有利条件。
2.2 平战转换面临的技术挑战
在实际工程中,通风系统的平战转换主要面临以下技术难点:首先,系统复杂性带来的设计挑战。由于战时不同防护单元的功能需求差异显著,加之平时使用功能的多样性,使得通风系统需要在有限的空间内协调多种功能需求,这对管道布置、阀门设置和设备选型都提出了较高要求。
其次,空间限制带来的实施难度。人防工程内部空间本就有限,而通风系统还需与给排水、电气等其他专业系统协调布置。战时新增的通风管道及设备既要确保使用效果,又要避免与其他系统发生冲突,这对设计人员的空间规划能力提出了严峻考验。
最后,设备选型面临的适配性问题。平战两种模式下,通风量需求存在数量级差异:战时清洁通风量通常仅为平时风量的五分之一;战时状态需要保证系统的可靠性与安全性,而平时运行则更注重节能与舒适性。此外,战时对设备防护性能的特殊要求与平时对低噪音、长寿命的追求,使得设备选型需要综合考虑多方面因素。
三、平战结合人防工程通风系统高效转换设计策略
3.1 系统集成设计方法
采用系统集成的设计理念,将平时通风系统与战时通风系统进行有机整合。通过合理设置常闭蝶阀、多叶调节阀等关键节点控制装置,实现一套设施满足多种工况需求。这种设计方法既避免了重复建设,又显著提高了空间利用率。
在气流组织优化方面,设计时充分考虑平战不同工况下的气流特性差异。战时人员掩蔽区域的送风口宜均匀布置在掩蔽人员活动区,排风口需设置于需要处于负压的干厕等房间且应防止气流短路;而平时作为停车场使用时,则需根据车辆停放布局和行驶路线优化风口布置,提高通风效率,基于前述要求,平时排风排烟管及风口布置时宜尽量在防烟分区内较为均匀布置以满足平战使用需求。
3.2 设备选型与配置优化
在设备选型方面,优先选用具有双速运行功能的通风设备。以人防二等人员掩蔽所为例,选用 HTFC-Ⅳ-18 型双速离心风机,其低速运行时风量 7050m3/h 、功率 2.8kW,可满足战时清洁通风需求;高速运行时风量可达 18000m3/h 、功率 8kW,符合平时消防补风要求。通过风机入口端设置智能阀门,可实现平战模式的快速切换。
对于战时作为物资库及车辆掩蔽部的防护单元,采用战时排风风机与平时送风机或排烟风机合用的设计方案。这种设计不仅减少了设备数量,降低了土建成本,更有利于战时快速完成平战转换。通过设备的多功能化设计,显著提高了系统的经济性和可靠性。
3.3 智能化控制与监测系统
构建基于物联网技术的智能化控制与监测系统,实时采集风量、压差、空气质量等关键参数。平时运行模式下,系统可根据室内环境参数自动调节设备运行状态,实现节能运行;战时模式下,当监测到室外空气污染时,系统可自动切换至相应通风模式,确保防护安全。
系统还具备远程监控功能,工程管理人员可通过专用平台实时掌握系统运行状态,及时发现并处理异常情况。这种智能化的管理模式大大提高了系统的可靠性和维护效率。
四、工程实践案例分析
4.1 项目概况
某住宅小区地下人防工程,地下1 层,建筑面积3400 平方米。平时作为普通地下停车场使用,战时转换为物资库功能。其中,物资库口部连接汽车坡道,人防防护单元内有 2 套完整的排烟系统及一套补风系统。该工程具有典型的平战结合特点,其通风系统设计面临诸多挑战。
4.2 设计方案实施
在系统集成方面,创新性地将平时车库排烟补风系统与战时送风系统进行整合。通过共用设备机房、风管系统和风机设备,配合阀门控制系统,实现了平战通风模式的一键切换。
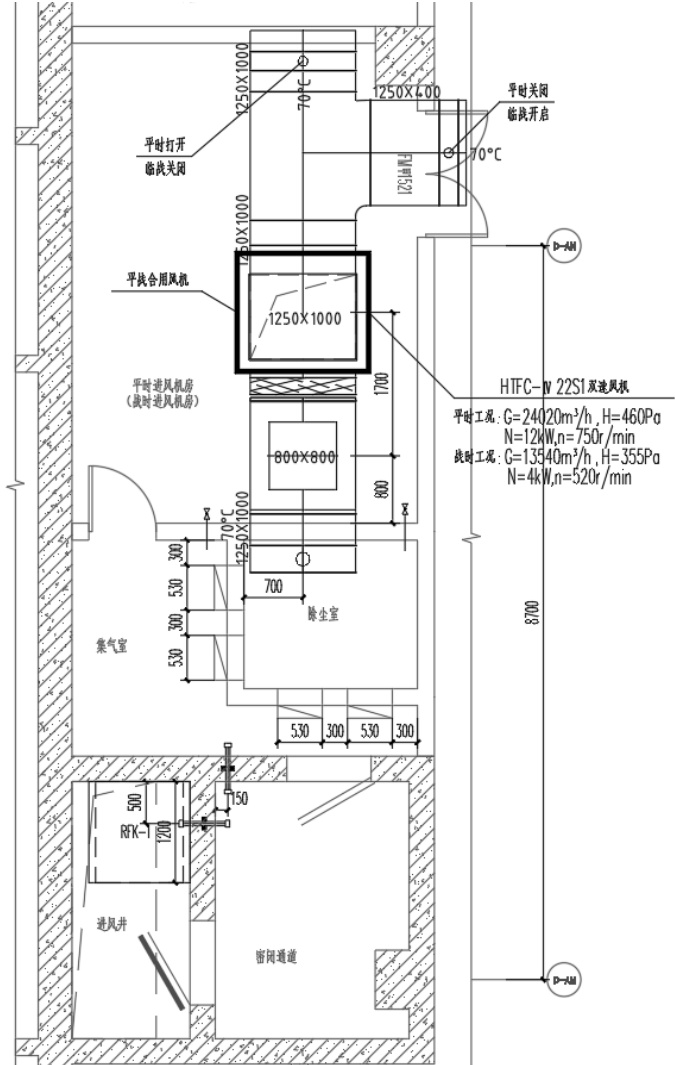
平时运行时可满足车库通风和消防排烟需求,战时可快速转换为物资库通风模式,设备管道布置详见图
设备选用双速混流离心风机,平时高速运行满足送风或消防补风需求;战时风机切换为低速运行,通过阀门控制将风送入排风管道内,通过平时排风管及风口将空气送入防护单元内部。此设计将平时风机及管道、风口全部平战合用,大大减少战时通风系统施工工程量,发挥了显著的经济效益,系统集成设计减少设备和管道数量,降低建设成本。该工程通风系统高效转换设计为类似项目提供了经验,具有推广价值。
图1 战时物资库送风机与平时补风机合用

五、结论与展望
本研究通过系统性的理论分析和工程实践,验证了系统集成设计、设备选型优化及智能化控制在解决人防工程通风系统平战转换难题方面的有效性。研究成果不仅提高了通风系统的转换效率,也为人防工程的平战结合实践提供了新的思路。
展望未来,人防工程通风系统将朝着更加智能化、高效化的方向发展。一方面需要持续研发新型通风与过滤技术,提升系统的防护性能;另一方面,依托自动控制技术,实现通风系统的自适应调节与精准控制。同时,强化跨学科协同,整合建筑、电气等多系统设计,全方位提升人防工程综合性能,以适应国防建设与城市发展的新需求。
参考文献:
[1]郭紫君,曹源.地下车库与人防工程通风系统平战结合设计实例[J].工程建设与设计,2021(9):35-37.
[2]沈菲菲.人防工程通风系统设计要点分析[J].建筑工程技术与设计,2014(20):178.
[3]李静.人防工程通风空调系统关键技术研究[J].中国设备工程,2024(22):97-99.