小曲线大坡度跨营业线单线大吨位箱梁及道岔梁架设关键技术研究
张国华
中铁三局集团线桥工程有限公司 河北廊坊 065201
1 引言
随着我国“八纵八横”高铁网络向中西部延伸,铁路桥梁建设逐渐向小半径曲线、大坡度、跨既有营业线等复杂工况拓展。传统架桥机(如HZQ550 型)仅能适应曲线半径≥800m、坡度≤20‟的常规工况,无法满足400m小曲线、30‟大坡度及跨营业线等特殊需求。自宜铁路、杭衢铁路等工程中首次出现的 550t 单线箱梁在 400m小曲线、30‟大坡度条件下跨营业线架设,以及道岔梁首孔架设等问题,亟需突破传统工艺限制,形成针对性技术方案。
本文基于在自宜铁路 ZYZQ-3 标、杭衢铁路 HQZQ-4 标等项目的实践,系统总结小曲线大坡度跨营业线单线大吨位箱梁及道岔梁架设的关键技术,为同类工程提供技术参考。
2 工程背景与难点分析
2.1 工程概况
1.自宜铁路:新建川南城际铁路自贡至宜宾线 ZYZQ-3 标,包含7 座单线桥、194 孔单线简支箱梁,需跨越既有成贵铁路,存在400m 小曲线、30‟大坡度及6 条联络线交叉等工况。

图 自宜铁路小曲线地段平面示意
2.杭衢铁路:九景衢下行联络线特大桥需跨越既有九景衢铁路,采用32m 简支箱梁上跨,曲线半径400m,属高铁范围内首次小半径跨营业线架设。

图 杭衢铁路小曲线地段上跨营业线平面示意
2.2 核心难点
·设备适配性差:传统架桥机仅适应800m 以上曲线、 20‰ 以下坡度,无法满足400m 小曲线、30‟大坡度需求;·稳定性风险高:小曲线导致架桥机中线偏移,大坡度引发重心失衡,跨营业线需严格控制作业时间;·道岔梁首孔架设复杂:单线桥机后支腿需踩踏双线道岔梁翼缘板,易导致荷载集中及结构失稳。
3 关键技术研究
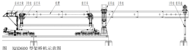
3.1 架桥机适应性改造技术
针对400m 小曲线、 30‰ 大坡度工况,对JQXD600 型架桥机进行专项改造:
1.一号柱横移装置:在一号柱底部增设横移油缸(行程 ±1000mm) ),配合顶部移动机构,实现架桥机中线在小曲线段的精准调整;
2.卷扬系统优化:更换折线滚筒及 Φ28mm×180m 钢丝绳,提升大坡度下的制动可靠
3.运梁车制动升级:更换大马力发动机、刹车片及气路系统, 30% 坡度下制动力安全系数达 3.01,满足重载运梁需求。

3.2 小曲线姿态偏移过孔工艺针对小曲线(R=400m)导致的架桥机中线偏移问题,提出“姿态偏移过孔”工艺:

图 小曲线姿态偏移过孔工艺流程图
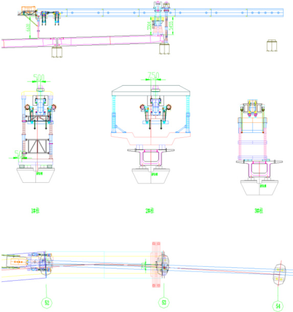
1.机臂调整:通过一号柱横移油缸向曲线内侧偏移500mm,二号柱向外侧偏移200mm,补偿曲线段墩台中心偏差(2.7m);

图 机臂调整后架桥机状态
2.分阶段支立:支立三号柱后,二号柱前移33m 至下一孔位,一号柱同步前移并通过横移油缸二次调整(累计偏移1000mm),确保机臂与墩台中心对齐;

图 分阶段支立架桥机状态
3.同步喂梁:运梁车与架桥机协同前移,控制梁体与机臂中线偏差≤50mm,实现小曲线段精准对位。


图 同步喂梁状态
3.3 坡度稳定性控制技术通过理论计算与模拟试验,建立大坡度 (30%) )下架桥机稳定性控制体系:
·纵向稳定性:悬臂过孔时,二号柱与三号柱支反力分别为304t、35t,稳定系数1.54 (⩾1.5) ;尾部悬臂时,一号柱与二号柱支反力38t、301t,稳定系数1.56(≥1.3);

·横向稳定性:400m 曲线过孔时,一号柱支反力 242t,风载倾覆力矩 61t⋅m ,稳定力矩 412t²m,稳定系数 6.75(≥1.5);


3.4 跨营业线安全保障技术
针对上跨九景衢铁路等营业线工况,制定“封锁点-工序”联动方案:
·时间控制:II 级封锁时间230 分钟,细化为过孔(60min)、喂梁(40min)、落梁(60min)、灌浆(70min)4 阶段,单阶段超时≤5min;
·智能监控:安装电子垂直度检测仪(1#柱垂直度 ⩽5% )、无线列车接近报警装置,实时预警设备倾斜及列车接近风险;
·临时加固:3#柱支立点翼缘板下方增设 800×850×300mm 钢垫墩,分散荷载并提升局部刚度。
3.5 道岔梁首孔架设技术
·应力分散:采用钢结构扁担梁(长度与道岔梁同宽)横放于梁顶,桥机后支腿踩踏扁担梁,将集中荷载分散至全梁宽度,避免局部压溃。
针对单线桥机踩踏双线道岔梁翼缘板的偏载问题,提出“双重加固”方案:
·翼缘板加固:在翼缘板下方支垫20mm 厚钢板,提升局部抗压强度;
4 技术创新点
(1)设备改造创新:研制一号柱横移装置(行程±1000mm),突破传统架桥机曲线半径 ⩾ 800m 的限制,实现400m 小曲线架梁;
(2)工艺方法创新:提出“姿态偏移过孔”工艺,解决小曲线段架桥机中线偏移难题,架梁精度提升至±20mm;
(3)安全控制创新:开发大坡度运梁车制动力计算模型(安全系数 3.01),结合智能监控系统,将倾覆风险降低30%;
5 工程应用与效益分析
5.1 应用效果
·自宜铁路:194 孔单线箱梁全部安全架设,单孔架梁时间由传统工艺的2 天缩短至1 天,设备倾覆风险零发生;·杭衢铁路:九景衢下行联络线特大桥28 孔箱梁跨营业线架设,未影响既有线运营,业主评价“安全高效,技术领先”。
5.2 效益分析
经济效益:节约设备购置及天窗点申请费用约200 万元,单孔工期缩短节约人工成本50 万元;
·社会效益:形成《小曲线大坡度单线箱梁架设技术》标准化作业手册,为类似工程提供标准,推动行业技术进步;
·环境效益:预制架设减少现场现浇混凝土用量1.2 万m³,降低粉尘排放30%,符合绿色施工要求。
6 结论
本文针对小曲线大坡度跨营业线单线大吨位箱梁及道岔梁架设难题,通过架桥机适应性改造、姿态偏移过孔工艺、稳定性控制及安全保障等关键技术研究,形成了成套施工技术体系。工程实践表明,该技术成功解决了传统设备无法适应复杂工况的问题,具有显著的推广价值,可为我国复杂地形铁路桥梁建设提供重要技术支撑。
参考文献:
[1] 中铁三局集团线桥工程有限公司、中铁三局集团有限公司.一种小半径曲线坡道大吨位箱梁架梁施工方法:CN202211125801.1[P]. 2022.09.16
[2] TB/T 2331-2013, 铁路桥梁球型支座[S].中国铁道科学研究院铁道建筑研究所
[3] Q/CR 9213-2017, 铁路架桥机架梁技术规程[S].中国铁路总公司
作者简介:张国华(1977-),男,山西榆社人,本科,高级工程师,从事铁道工程工程管理工作。