基于PV syst 的螺杆泵光储系统仿真研究
王安然 高英 李又武 于姣姣
中海石油气电集团技术研发中心 100028
0 引言
近年来,光伏 - 储能系统在工业领域的应用逐渐成熟。研究表明 [2][3][4][7],光储技术在油气田、煤矿等高耗能场景中可显著降低碳排放与运维成本。杨彩梅等人(2021)通过仿真验证了光储系统在油田机采设备中的可行性,年节能率达 30% 以上[3];王双明等(2023)进一步提出“双碳”目标下赋煤区新能源开发的路径,为煤层气项目光储化改造提供了政策依据 [7]。然而,针对大功率排采设备的光储离网系统设计仍缺乏成熟案例。
澳洲是世界上太阳能资源最丰富的国家之一,具备巨大的太阳能发电潜力。目前,国内外井场光伏的供电范围主要局限于低功率辅助设备,相反,将其作为大功率生产设备,如抽油机、螺杆泵等直接驱动电源的项目实践仍较为匮乏。其关键制约因素在于光伏发电固有的间歇性与波动性特征导致驱动设备运行异常或失效,进而无法保障煤层气井稳定排采。因此,构建适用于煤层气井大功率排采设备的光储协同供电系统,对于优化井场能源结构、降低化石能源依赖、实现绿色低碳生产具有重要的工程应用价值。澳洲政府的政策支持和市场机制也在进一步推动着太阳能行业的发展,这为该项目光储系统的实施提供了一定保障。
本文以澳洲煤层气项目某典型井场为例,根据当地光照条件、井场条件以及设备条件等进行该项目光储系统配置,旨在探讨光伏储能发电技术用于直接驱动螺杆泵排采系统的应用可行性,以期为同类项目建设提供参考。
1 澳洲煤层气项目排采与驱动系统现状
澳洲煤层气项目上游煤层气来自昆士兰州苏拉特盆地,井场目前主要是燃气驱动液压动力装置再作用于螺杆泵,能耗也主要来自于螺杆泵工作产生,排碳量约占项目上游共碳排放量的 20% ,利用燃气驱动HPU(液压动力装置)每年消耗井口燃料气约1.5 亿方。
1.1 螺杆泵系统组成及工作原理
该项目采用地面驱动螺杆泵系统,主要包括地面设备和井下设备两部分。地面驱动设备主要有液压动力单元、远程控制设备、撬装分离器、增压泵、集气 / 液管道、固体废物储罐等;井下设备主要包括螺杆泵和锚定工具等。在螺杆泵工作过程中,通过燃气做功产生动能,将动能传递给液压驱动装置,驱动装置减速后,方卡子再将动力传递给光杆,抽油杆与光杆连接,最后将动能传递至螺杆泵 [1]。气液混合体被螺杆泵举升至井口,再进入集气 / 液管道,然后经由地面的撬装分离器进行气液分离,使得气体进人输气管线,废液进入输液管线(图1)。
图1 螺杆泵排采系统组成

1.2 燃气 - 液压驱动螺杆泵工作存在的问题
燃气 - 液压驱动装置是一种利用天然气或其他压缩气体燃料产生动能的设备,燃气在燃烧室燃烧,驱动液压动力单元工作,进而带动螺杆泵生产 [6]。其优势在于响应速度快、能量利用效率高等,但在运行过程中也存在燃料气质量较差或供应不稳定、动力驱动装置机械部件磨损和老化、排放二氧化碳、氮氧化物和颗粒物等污染物以及燃气燃烧过程中的安全问题等 [8]。因此,增加一套可行的光伏储能发电系统替代燃气 - 液压驱动装置,为螺杆泵提供持续稳定的电能,驱动其正常工作,可节约井场能耗、节能减排。
2 项目所在地太阳能资源条件
2.1 光照条件
该项目位于澳大利亚昆士兰州,根据《太阳能资源评估方法》〔QX/T89-2018〕,该地区属于太阳能资源丰富带,能保证项目有较高的发电量,有很好的开发前景。据数据源 Meteonorm 显示昆士兰洲多年完整连续的太阳辐射观测数据如表1 所示。
表1 昆士兰州年太阳辐射数据

根据表 1 可以看出,昆士兰州年平均太阳能辐射总量约为1912.0kWh/m2 ,年平均温度为 20.1qC ,该地区光资源稳定,非常适合建立光伏电站。假设以我国的太阳光资源辐照量为分类参考标准(见表2),该项目所在地按照年辐射总量属于一类地区。
表2 中国太阳能资源丰富程度等级

2.2 应用优势
太阳能作为可再生资源,具有取之不尽用之不竭的优势,且不产生污染物,没有噪声危害,对环境无不良影响 [5]。对于澳洲煤层气项目来说,光储系统可以大大降低螺杆泵这种大功率排采设备对燃气的依赖,缓解由燃气价格上涨而带来的压力,降低上游操作费用,还可以对闲置土地进行合理高效的利用。同时,光储系统还具备能源独立性,即自发自用,就近供电。长远来看,光伏发电效率还将持续上升,能够保障大功率设备高效稳定工作。
3 实例设计计算
3.1 井场条件
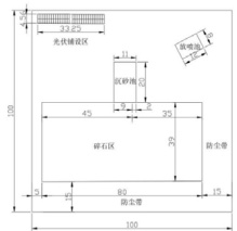
本项目开发井的井场区域为 100×100m ,主要包含碎石区( 80×39×0.2m )、防尘带(碎石区外环)、沉砂池( 20×11×2.5 m)、放喷池( 12×8×2.5m ),理论上剩余 400m2 的面积可以利用。
3.2 系统方案
3.2.1 系统结构
由于可再生能源的波动性,光伏发电存在间歇性、随机性的特点 [2],且井场地处偏远地带,未接入当地公用电网,通过配置储能设备以协同工作,可以减轻光伏发电系统中的功率波动,并稳定逆变器的直流母线电压,这样做能够确保螺杆泵的运行效能保持在优质水平。其结构图如图2 所示。
图2 系统设计

3.2.2 光储系统计算方法
离网的光伏加储能发电系统旨在满足日间的用电需求,并将日间多余的电力通过储能设备保存起来以备不时之需。当光伏发电功率降低、在夜间或是阴雨天气,储能系统中存储的直流电能会通过逆变器转换,以供给电力负荷使用。在设计光伏系统的容量时,需要考虑到直接通过光伏逆变器供电与先储存电能再通过逆变器供电给负载的效率差异。因此,设计过程中必须综合考虑由光伏直接逆变供电和通过储能逆变供电的负荷情况。储能单元通过转换和逆变器供电的负载,大致可以分为日间有阳光时的负载、夜间负载,以及阴雨天的自供电需求总负载。因此,光伏系统的设计容量应基于这些考量确定。则光伏系统设计容量为:

式中 Qd ——光伏直接逆变供应的电能;
Qi ——经储能逆变后供应的电能;
i——负荷增长率;
— —日辐照峰值等效小时数;
φn — 第 Πn 年的光伏衰减率;
λ — 保证系统可靠系数,一般大于等于1;
η1 — 光伏直接逆变时的效率,一般可取 82% ;
η2 — 光伏经储能逆变后的效率,一般可取 75% 。
为确保螺杆泵在极端天气条件下能够正常排采,设计增加储能电池。设计储能系统的容量时,应综合考虑环境温度、放电深度、充电与放电的效率、逆变效率、当地的负荷需求特点,以及能够自给的阴雨天数等因素。蓄电池容量计算公式为:
C=P×t×T/(V×K×η2)
式中 C——蓄电池组容量,单位 Ah ;
P— 负载功率,单位W;t— 负载每天用小时数,单位 h ;T— 连续阴雨天数,单位 Δh ;V— 蓄电池组额定电压,单位 ΔV ;K— 蓄电池的放电系数,考虑蓄电池效率、放电深度、环境温度影响因素而定,一般取值为0.4~0.7;
η2 ——逆变器效率。其中,年发电量计算公式为:

式中 HA ——水平面太阳能总辐照量, kWh/m2 ;
Ep — 年发电量, kWh ;
Es 标准条件下的辐照度(常数 Λ=1kWh/m2 );
PAZ — 组件安装容量, kWp ;
K — 综合效率系数。
3.3 结果分析
以澳洲煤层气项目某典型井场为例,井场用电功率为 5kW 。光伏系统采用 540Wp 单晶PERC 组件,采用固定式支架安装方式,最佳倾斜角为 30∘ ,方位角为 0∘ ,按照冬至日 9:00~15:00 间无遮挡为原则,进行常规设计,连续阴雨天数取3 天。
3.3.1 光伏 - 储能系统方案计算结果
针对负荷情况和光照资源情况,据 3.2 节中的系统计算方法,基于 PVsyst 得到光伏储能系统配置方案,光伏组件装机容量为 30kWh,储能容量为 590kWh (表 3),系统布置图见图 3。
表3 光储系统配置信息表

由于铅酸免维护蓄电池电解液的消耗极低,因此在其整个使用期限内几乎不需要添加蒸馏水。此外,这种蓄电池还具备抗震、耐高温、体积紧凑和低自放电等属性。基于节能减排、成本效益和安装空间的考虑,本项目选择了12 伏的铅酸蓄电池。
图3 澳洲煤层气项目某典型井场光储系统布置图

3.3.2 发电量预测
根据单晶硅的数据,光伏模块衰减按第一年 2% ,随后每年0.55% 的速率计算。以第 3.2 节中的公式计算可得出该光伏系统 25年内每年的发电量和年度使用小时数,如表 4 所示。其中首年发电量为 47781 千瓦时,25 年累计发电量为 1114075 千瓦时,平均发电量为 44563 千瓦时,25 年年均等价年利用小时数约为 1485.41485.4小时。其中,年利用小时数 Σ=Σ 年系统发电量/ 装机容量。
表4 光伏系统 25 年逐年发电量及利用小时数


3.3.3 光储系统发电与负荷用能对比
按平均单日有效光照时间为 4.1 小时计算,单日光伏发电量为 122kWh ,其中用于直接驱动螺杆泵的电量为 20.5kWh ,用于储能 101.5kWh 。光伏发电每年用于直接驱动螺杆泵的电量为 7427kWh,用于储能 37136 kWh(见表 5)。
表5 光储系统电量分析

而澳洲煤层气项目某典型井场螺杆泵日用电量为 120kWh,年用电为 43800kWh ,设计的光储系统能够满足井场全天 24 小时不间断生产的需求(见表6)。
表6 光储系统发电与负荷用能对比表

4 结论与建议
本文以澳洲煤层气项目某典型井场的螺杆泵这一排采设备为主要研究对象,通过分析该项目排采与驱动系统现状、井场所在地太阳能资源条件,结合系统优化分析方法,设计光伏装机容量为30kWP ,配套 590kWh 储能装置的光伏储能离网系统。采用 540wp 单晶硅光伏板 56 块,预计铺设面积为 152m2 。基于 PVsyst 设计一套可行的光伏 - 储能离网系统,可为螺杆泵提供全天 24 小时不间断电力。
随着离网式光伏发电系统的持续进步,为设备提供稳定电力供应的光伏配合储能技术已经成为一个关键议题。尽管目前的离网式光伏发电系统面临着蓄电池设计不精确、最大功率点追踪难以实现以及光伏逆变器性能波动等挑战,但通过针对性的分析和采取科学合理的优化策略,可以有效提升这些系统的安全性和稳定性,从而推动光伏发电技术的持续进步和可持续发展。
参考文献
[1] 付倩倩,王旱祥 . 煤层气排采用螺杆泵系统的适应性研究[J]. 中国煤层气,2013.10(05):40-43+39.
[2] 王振,吴继宗,郝杨,李阳 . 分布式光伏发电系统接入煤矿配电网设计与研究 [J]. 煤炭工程,2022,54(11):53-56.
[3] 杨彩梅,辛星志,石福浩 . 基于光伏 / 储能的油田机采电气系统的仿真分析 [J]. 石油石化节能,2021,11(10): 19-23+8 .
[4] 曹冏屹 . 基于 PVsyst 的光伏与储能系统仿真 [J]. 中外能源,2021,26(11):20-27.
[5] 常建国,付梦菲 . 基于 PVsyst 软件的屋顶光伏发电系统发电量的研究 [J]. 太阳能,2022,No.343(11):81-87.
[6] 张彦廷,李增亮,王旱祥 . 地面驱动螺杆泵油井生产系统的优化设计 [J]. 石油矿场机械,2000(01):24-26.
[7] 王双明,刘浪,赵玉娇,张波,王晶钰,朱梦博,王美,张小艳 .“双碳”目标下赋煤区新能源开发——未来煤矿转型升级新路径 [J]. 煤炭科学技术,2023,51(01):59-79.
[8] 周帅,喻鹏,刘建伟,余曦 . 直驱式螺杆泵装置在煤层气井上的应用 [J]. 中国煤层气,2016,13(03):38-40.