三冲量自动调节系统在130t/h 煤气混烧锅炉上的应用
李刚
宝武集团新疆八一钢铁股份有限公司能源环保部 新疆维吾尔自治区乌鲁木齐市 830022
三冲量自动调节系统是锅炉发电作业区 130t 锅炉给水自动调节系统的重要组成部分。其根据汽包液位、给水流量、蒸汽流量三冲量经 PID 计算来调节给水阀门开度,从而达到自动控制汽包液位的目的。汽包水位控制是锅炉运行中至关重要的环节,其目的是维持汽包水位在安全范围内,水位过高可能导致蒸汽带水(汽水共腾),降低蒸汽品质,损坏过热器。水位过低可能造成锅炉受热面干烧,引发爆管事故。动态波动锅炉负荷变化(如用汽量突增 / 突减)会导致虚假水位现象(短暂的水位上升或下降),需要快速响应。
1 三冲量调节系统构成
汽包水位:作为主信号,反映了锅炉内部水位的实际高度,是调节系统的主要控制目标,用双室平衡容器与汽包联通,双室平衡容器具有一定自我补偿能力的汽包水位测量装置。如图 1 所示,在基准杯的上方有一个圆环形漏斗结构将整个双室平衡容器分隔成上下两个部分,为了区别于单室平衡容器,称为双室平衡容器(见图 1)。汽包水位测量需补偿汽包压力对水位测量的影响(密度变化)。需压力 - 温度补偿算法修正密度变化误差。冗余设计安装多个水位计(如差压式、电接点式),避免单点故障。

图1 双室平衡容器
蒸汽流量:作为前馈信号,蒸汽流量的变化可以预见性地调整给水流量,以应对蒸汽需求的变化,防止因蒸汽流量波动引起的虚假水位现象,采用节流喷嘴(见图 2)作为测量元件。需压力 - 温度补偿算法修正密度变化误差。采用高精度喷嘴流量计和高精度差压变送器,定期清洗排污防止结垢,定期检定。
图2 节流喷嘴

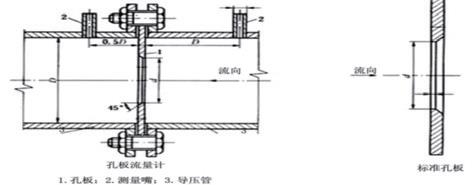
给水流量:作为反馈信号,实时监测给水的实际流量,确保给水流量与蒸汽流量相匹配,维持水位的稳定,采用节流孔板(见图3)作为测量元件。需压力- 温度补偿算法修正密度变化误差。采用高精度孔板流量计和高精度差压变送器,定期清洗排污防止结垢,定期检定。

图 3 节流孔板
调节阀:采用无锡 KOSO 调节阀,气关式(见图 4),故障状态阀门开启。三个调节阀, 分别为主给水调节阀,大旁路给水调节阀,小旁路给水调节阀。选用多级节流阀,特性曲线(线性/ 等百分比)需匹配控制需求。
图4 气动调节阀

2 三冲量调节系统调节原理
三冲量调节实际上是一个带前馈信号的串级控制系统。液位控制器 LIC 与给水流量控制器 FIC 构成串级控制系统。汽包液位是主变量,给水流量是副变量。副变量的引入使系统对给水压力(流量)的波动有较强的克服能力。蒸汽流量的信号作为前馈信号引入。锅炉给水三冲量调节是一种先进的自动控制系统,主要用于维持锅炉汽包水位的稳定。该系统通过综合考虑汽包水位、蒸汽流量和给水流量三个关键参数,实现对给水阀门的精确控制,从而达到优化锅炉运行效率和保障安全的目的。
串级控制:三冲量调节系统实际上是一个带前馈信号的串级控制系统。液位控制器与流量控制器构成串级控制系统,其中汽包液位是主变量,给水流量是副变量。
前馈作用:蒸汽流量的信号作为前馈信号引入系统,当蒸汽流量发生变化时,系统会提前调整给水流量,以维持汽包水位的稳定。
反馈作用:给水流量的信号作为反馈信号引入系统,实时监测给水的实际流量,并与设定值进行比较,调整给水阀门的开度,确保给水流量的稳定。其控制系统结构图如图 5 所示:

主调节器(水位控制):接收汽包水位信号,与设定值比较,输出作为副调节器的设定值。副调节器(给水流量控制):接收给水流量反馈信号,结合主调节器输出和前馈信号,调整给水阀开度。前馈补偿(蒸汽流量):当蒸汽负荷变化时(如用户用汽量突增),直接调整给水量,避免水位剧烈波动。
系统结构为串级控制 + 前馈补偿, 负责稳态精度。副环(内环)为给水流量闭环控制,响应快, 抑制 消外部扰动。信号匹配需统一三个冲量的量纲和量程,传感器精 限幅时,需对 PID 算法做抗饱和处理。提高调节品质。 三冲量调 节系统综合 考虑到水位偏差的大小,能够有效克服虚假水位的影响,解决给水流量的扰动问题, 提高调节 使系统对给水压力(流量)的波动有较强的克服能力,增强了系统的稳定性。
3 三冲量调节系统实际应用的问题与解决方案
八钢能环部 130t 锅炉是煤粉 / 煤气混烧锅炉,其燃料为高炉煤气、焦炉煤气和煤粉,煤气输送过程中存在压力波动大、温度变化大等情况,煤粉燃烧不稳定,而且蒸汽量需求负荷波动大。由于以上情况,汽包易形成虚假水位,现象是负荷突增时,汽包压力下降,水容积膨胀导致水位短暂上升;反之亦然。其应对为通过蒸汽流量前馈信号快速补偿给水量,采用三冲量控制抑制动态偏差。三冲量调节系统(常见于锅炉汽包水位控制等工业过程)通过综合调节三个关键变量(如水位、蒸汽流量、给水流量)实现稳定控制。
3.1 常见问题及解决方案的
P、I、D 参数的确定:
试凑法:初始参数(P=50%, I=5min, D=0)逐步调整,观察水位响应曲线。
阶跃测试:突增 10% 负荷,优化积分时间避免超调。
分步整定法确定:① 先关闭微分(D),整定比例(P)使系统稳定; ② 加入积分(I)消除静差;③最后引入微分(D)抑制超调;④ 前馈补偿调整。根据蒸汽流量变化幅度,调整前馈系数(如负荷突变时增大前馈作用)。PID 参数整定应对虚假水位的策前馈系数动态调整,列如负荷变化率超过 5%/min 时,前馈增益提高 20%。微分先行 PID 在虚假水位阶段增强微分作用,抑制瞬态波动。
2)蒸汽流量或给水流量测量干扰:
虚假水位现象(如锅炉负荷突增时水位先升后降)。测量信号噪声导致阀门频繁动作
其原因蒸汽流量波动剧烈(如压力变化、管道振动)。 传感器故障(如变送器漂移、安装位置不当)。解决方案为对蒸汽流量信号进行低通滤波或滑动平均处理。安装多台传感器对比数据,定期校准。引入动态补偿算法进行虚假水位补偿(如基于蒸汽流量变化率的修正项)。
3)阀门特性不佳或执行机构故障:
阀门卡涩、响应滞后。给水流量与阀门开度非线性 (如阀门死区 。其原因为机械磨损、介质结垢。阀门选型不当(如线性阀用于非线性工况)。解决方案为通过软件线性化补偿阀门死区或非线性。清洗阀门、检查执行机构气源/ 电源稳定性。
更换智能阀门定位器:提升控制精度和响应速度。
4)系统耦合干扰:
其他控制系统(如燃烧系统)的干扰影响水位稳定性。多变量耦合导致控制回路相互冲突。需要设计解耦算法,隔离耦合变量影响。 协调控制策略:在DCS/PLC 中实现多系统协同(如负荷变化时同步调节给水和燃料)。5)模型失配(实际工况与设计模型偏离):
控制效果随工况(如高 / 低负荷)变化显著下降。其原因为系统动态特性随负荷变化(如锅炉蒸发量变化导致惯性时间常数改变)。解决方案采用模糊 PID 或模型预测控制(MPC)在线调整参数实现自适应控制。针对不同负荷段预设多组PID 参数分段参数整定。
3.2 注意事项
先单冲量(仅水位)调试稳定,再逐步引入蒸汽流量前馈和给水流量反馈。 通过阶跃响应测试验证动态性能。在特殊情况下,可采用单冲量(仅水位)调整。
2)安全联锁保护:
设置水位高低限报警及联锁保护,防止干烧或满水事故。低水位低于 -200mm 时切断燃料供应,并同时启动紧急补水步序并停炉。高水位+220mm 触发声光报警,并同时开启事故放水阀。
利用历史趋势图分析波动原因,区分是工艺扰动还是控制问题。
4)日常维护:
定期校验水位计、流量计精度。避免给水阀频繁大幅动作,减少机械磨损。设计高低水位联锁保护(紧急停炉或关闭燃料阀)。通过合理设计控制系统并优化参数,汽包水位可稳定在 ±30mm 范围内,保障锅炉安全高效运行。采用高精度喷嘴流量计和高精度差压变送器,定期清洗排污防止结垢,定期检定。选用多级节流阀,特性曲线(线性 / 等百分比)需匹配控制需求。
5)冗余安全设计:
独立硬接线回路:关键联锁信号(如水位极低)绕过DCS 直接控制执行机构。定期测试,每季度模拟水位故障,验证联锁响应时间≤2 秒。
4 控制系统硬件与软件实现
南京科远(科远自动化)的DCS(分布式控制系统)硬件组成通常包括以下核心部分,具体配置可能因系统型号(如NT6000、SmartDCS 等)和应用场景不同而有所差异。
1. 控制站(控制器):负责实时数据采集、逻辑运算、闭环控制等核心功能。采用高性能处理器,支持冗余配置(主备切换,提高可靠性)。支持多种控制算法(PID、顺序控制等)。通过背板总线与I/O 模块连接。
2. I/O 模块(输入/ 输出模块:AI :模拟量输入(如4-20mA、热电偶信号)。模拟量输出AO(控制阀门、变频器等)。数字量输入DI(开关状态、脉冲信号)。数字量输出DO(继电器控制、指示灯)。特殊模块:热电阻(RTD)、脉冲计数、通信接口等。特点是模块化设计,支持热插拔。通道隔离,抗干扰能力强。可分布式部署(通过远程 I/O 站扩展)。
3. 通信网络:控制网络即连接控制器与I/O 模块,通常采用高速现场总线(如Profibus、CAN、EtherCAT)或工业以太网。系统网络即连接操作站、工程师站与控制器,多采用冗余工业以太网(如 TCP/IP,支持环形或星型拓扑)。支持OPC、Modbus 等协议,便于与第三方系统集成。
4. 操作员站(HMI)与工程师站:操作员站硬件为工业计算机或多屏工作站。其功能即实时监控工艺流程、报警管理、历史趋势查看。工程师站硬件为高性能PC 或服务器。其功能为系统组态、控制逻辑编程、数据库管理、系统维护。5. 冗余与电源系统:冗余设计包括冗余控制器、冗余通信网络、冗余电源模块。 确保系统在故障时无缝切换,提高可用性。电源系统为24VDC 或220VAC 供电,支持双电源冗余。配备电源分配模块和浪涌保护。
6. 机柜与机架:控制器、I/O 模块、电源等安装在标准机柜内。支持导轨式模块安装,便于维护。符合 IP 防护等级(如IP20/IP40),适应工业环境。
7. 扩展与接口设备:远程 I/O 站通过通信网络扩展至现场设备,减少布线成本。通信网关支持与 PLC、智能仪表、MES/ERP 系统的数据交互(如 RS485/232、以太网接口)。
典型应用场景为电力行业(火电厂、新能源)、化工、冶金、水处理等。支持大规模分布式控制,适应复杂工艺流程。系统设计需结合工艺需求,合理规划网络架构与冗余策略。DCS 系统:130 锅炉采用南京科远的 NT6000 V4.2.012 Release Build 2019.222,集成水位、燃烧、蒸汽温度等多回路控制。三冲量控制逻辑(基于DCS 编程),易1#130t 锅炉为例:

结语
三冲量系统的核心在于平衡前馈与反馈作用,需结合工艺特点动态调整参数。若常规 PID 无法满足复杂工况,可考虑智能控制算法(如模糊控制、神经网络)或升级硬件(如高精度传感器、快速执行机构)。通过 AI 故障诊断:利用机器学习分析历史数据,预警传感器漂移或阀门卡涩。通过无线传感器网络减少电缆布线成本,提升老旧锅炉改造便利性。定期维护和数据分析是保障长期稳定运行的关键。广泛应用于大型热电厂的单元制机组中,通过内外回路控制给水调节阀,确保水位稳定。在未来通过数字孪生实时仿真模型预测水位变化,提前调整控制策略。随着机组容量的增大,保护逻辑也越来越复杂,但三冲量调节系统仍然是保障汽包水位正常的重要手段。锅炉给水三冲量调节系统是一种高效、稳定的自动控制系统,对于保障大型热电厂的安全运行具有重要意义。
参考文献:
[1] 孙孝辉 . 汽包液位三冲量控制在加热炉上的应用 [C]// 中国计量协会冶金分会 ,《冶金自动化》杂志社 . 中国计量协会冶金分会2013 年会论文集. 中冶赛迪电气技术有限公司上海分公司;,2013:507-509.
[2] 马晓珑 . 汽包水位测量偏差产生的原因及消除对策 [J]. 湖南电力 ,2006,(02):27-31.
[3] 南京科远(科远自动化) 八钢130t 锅炉DCS 工程项目建设施工资料
作者简介:李刚(1970 年12 月29 日),性别:男,民族:汉,籍贯:江苏省江都市,职称:助理工程师,研究方向(或是主要从事的工作):工业自动化仪表身份证号码:650104197012291612